신창역(폐역)부지를 활용한 주민생활시설
ShinChang Station Living Cutural Facilities
방희승
신창역(폐역)은 충청남도 아산시 신창면 오목리에 위치하고 있다.
신창역(폐역)은 1922년 장항선의 건설과 함께 개관되었으며 신창역이 위치한 곳은 신창면의 생활거점지역에 위치하고 있다.
하지만 2007년 장항선 직선화로 인하여 지금의 신창역이 있는 순천향대학교 근처로 옮겨지며 일대 지역은 쇠퇴하게 되었다.
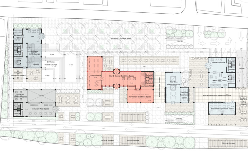
나는 이곳 신창역(폐역)부지를 활용하여 왜, 지금 우리는 폐역사를 관광의 목적으로 레일바이크, 숲길만 만드는 것일까?
라는 생각에서 시작하여 신창역의 본연의 역할 그대로의 주민들의 생활에 도움을 줄 수 있는 시설을 설계하고자 한다.












