옥인동; 커뮤니티 시설
이다희
옥인동 54번지 일대, 옥인동은 서촌에서도 위에 자리하고 있다. 서촌에서 관광보다 주거의 개념이 다른 곳 보다 뚜렷한 동네이지만, 지역민을 위한 공간은 부족하다.
대상지 주변에서 다양한 요소를 끌어들여 옥인동에 새로운 공간을 형성한다.
1.윤씨가옥
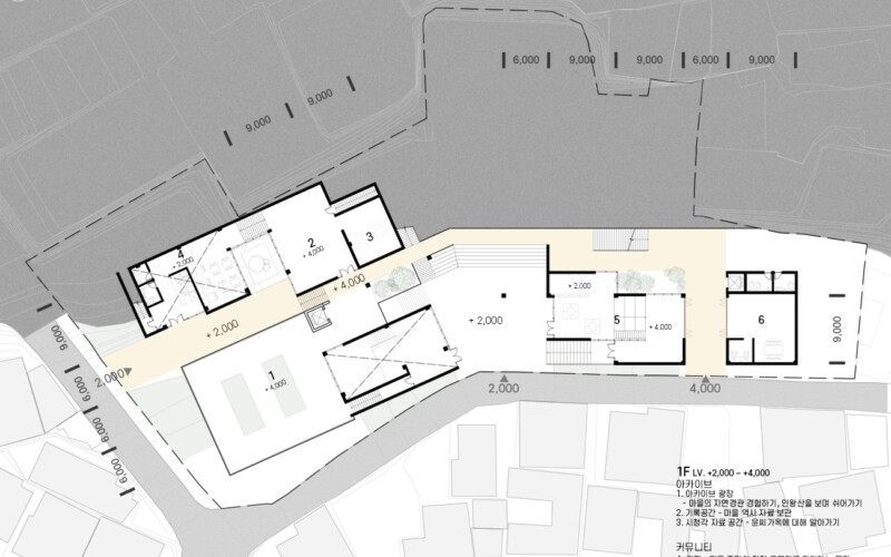
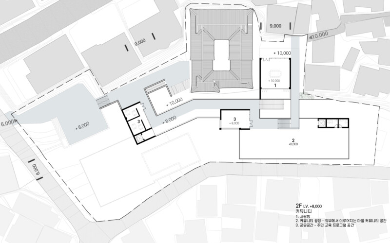
옥인동 또한 서촌에서 많은 역사와 문화를 품고 있다. 대상지는 옥인동의 역사와 관련이 깊은 윤씨가옥을 품고 있는데, 서촌의 문화산책의 코스 중 하나이면서도 남산골 한옥마을에 복원이 되어있는 가치있는 공간으로 마을의 커뮤니티 시설과 함께 연계시킬 수 있다.
2. 인왕산
옥인동은 인왕산 앞에 위치하여 작은 대상지 안에서도 레벨의 차이가 크다. 때문에 공간마다의 다양한 레벨에서의 진입을 경험할 수 있다.
3. 골목길
서촌은 옛 지도에서도 볼 수 있는 골목길을 현재에도 품으며 보존하려고 한다. 이를 대상지에서도 기존에 있던 골목길과도 연계하여 대상지에서 새로운 골목길을 형성한다.
4. 서촌의 시간
서촌의 길을 걷다 보면 다양한 시간대에 지어진 건물들을 경험하며 공간이 극적으로 변화한다는 것을 느낄 수 있다. 서촌에서 지나간 시간에 대해서 보존이 되면서도 다양한 역사가 깃든 공간감을 느낄 수 있다.
옥인동 또한 서촌에서 많은 역사와 문화를 품고 있다. 대상지는 옥인동의 역사와 관련이 깊은 윤씨가옥을 품고 있는데, 서촌의 문화산책의 코스 중 하나이면서도 남산골 한옥마을에 복원이 되어있는 가치있는 공간으로 마을의 커뮤니티 시설과 함께 연계시킬 수 있다.
옥인동은 인왕산 앞에 위치하여 작은 대상지 안에서도 레벨의 차이가 크다. 때문에 공간마다의 다양한 레벨에서의 진입을 경험할 수 있다.
서촌은 옛 지도에서도 볼 수 있는 골목길을 현재에도 품으며 보존하려고 한다. 이를 대상지에서도 기존에 있던 골목길과도 연계하여 대상지에서 새로운 골목길을 형성한다.
서촌의 길을 걷다 보면 다양한 시간대에 지어진 건물들을 경험하며 공간이 극적으로 변화한다는 것을 느낄 수 있다. 서촌에서 지나간 시간에 대해서 보존이 되면서도 다양한 역사가 깃든 공간감을 느낄 수 있다.















