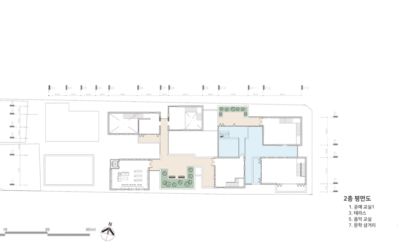
우리들의 문화 마을
또 다른 길, 또 다른 마을. 변화하는 소통의 장
윤혜영
장위동, 다양한 연령층이 모여 있고 그들 주변엔 전통시장이 있어 더욱 주민들과 소통할 수 있는 기회가 있다.
그곳은 주거지와 상업공간으로 이루어져 있지만 주민들의 소통이 단절되어 있다. 또한 골목길과 큰 길 각각 보이는 특징과 모습이 다르다. 이를 고려하여 상업지와 맞닿는 면의 입면은 상업지와 비슷한 리듬감을 가지고 주거지와 가까운 면은 마당을 내어주어 쉬는 공간을 내어준다. 주민들이 모여 휴식을 취하고 이야기도 나누고 다양한 여가를 배울 수 있는 문화 마을을 그려본다.
이곳은 여러 건물의 안과 밖의 경계가 창을 통해 흐려지며 한 공간으로 만들어지고, 다른 특성의 공간을 잡아주는 소통의 장, 장위 문화 마을이다.


















지현
창을 통해 건물 실내와 실외의 경계를 허물어 하나의 공간으로 인식할 수 있게 한 점이 인상깊었습니다 요즘 시대에 중요한 소통과 조화로움의 느낄 수 있었습니다 언제나 응원해요!!