인사동, 다시 우리 문화로 만나다
인사동의 우리 전통문화 정체성 회복을 위한 전통공예 문화 전수시설 제안
김지수
과거의 인사동은 도자기, 고서화, 고가구 등의 골동품들이 모여들었던 전통과 낭만의 거리였습니다. 그러나 현재 인사동은 관광지로 자리매김하게 되면서 중심거리는 상업 건물로 채워지고, 관광화·상업화에 집중되었습니다. 중층 건물에 의해 기존의 한옥 경관은 가려지고, 전통문화는 수입품과 기념품의 비중이 늘어나게 되면서 “전통문화”, “수공예 문화”에 대한 가치와 인지는 옅어졌습니다.
희미해지고 있는 인사동의 “전통문화의 거리”에 대한 정체성을 회복하기 위해서는 기존의 빠른 거리의 흐름 속에서 멈춰 서서 문화를 제대로 보고 인식할 수 있는 공간과 프로그램이 필요합니다. 따라서 이 프로젝트는 기존의 수동적인 관람 및 소비의 형태가 아닌, 전통 공예품의 ‘생산’과 ‘참여’가 중심이 되는 전통공예 문화 허브 공간으로서의 제안입니다.
프로세스의 첫 단계는 인사동의 정체성 중 하나인 ‘골목길’의 맥락을 받아들이는 것입니다. 대상지는 인근의 한옥을 둘러싸고 큰 조직의 건물이 우뚝 서 있어 길이 가로막히고 시야가 차단되어 서로 상호작용하지 못했습니다. 따라서 ‘비움’을 통해 작은 골목길 조직들을 연결하고, 길의 ‘축’을 통해 사람들이 자연스럽게 흘러 들어와 ‘전통공예 문화’로 만나는 가능성을 제공하였습니다.
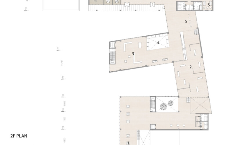
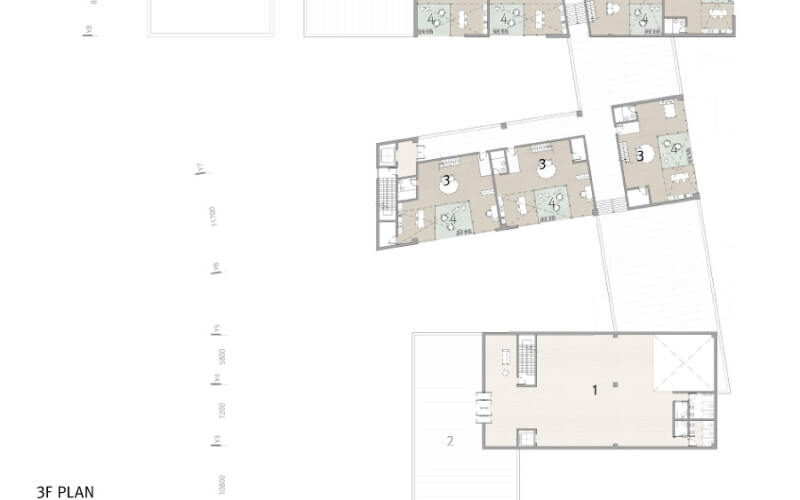
또한 ‘전통공예 문화’는 점차 사라지고 있는 무형문화재라는 점을 염두에 두고 프로젝트를 진행하였습니다. 따라서 무형문화인의 작업 공간, 전수자를 위한 전문 강습 공간, 임시 거주 공간을 지원하고, 체험, 전시 및 판매가 연계되어 ‘전통공예 문화’가 자생적으로 작동할 수 있는 시스템을 구축하였습니다. 이는 각각의 기능이 단일적으로 작동하는 것이 아닌, 수직적 공유로 인한 기능 간 엮임과 마주침을 유도합니다.
이를 통해 전통공예가 만들어지는 과정부터 결과까지 쉽게 보고, 참여하고, 배우며 사람들은 문화로 관계를 맺고 정서를 공유하며 전통문화를 인지함에 따라 전통공예 문화가 과거에만 머물러있는 가치 아니라 현재로써 작동하고 지속될 수 있는 가치로서 인식될 수 있기를 기대합니다.
















