愛觀, 보는 것을 사랑하다.
과거 애관극장 부지에 새로운 영화관 제안
한대희
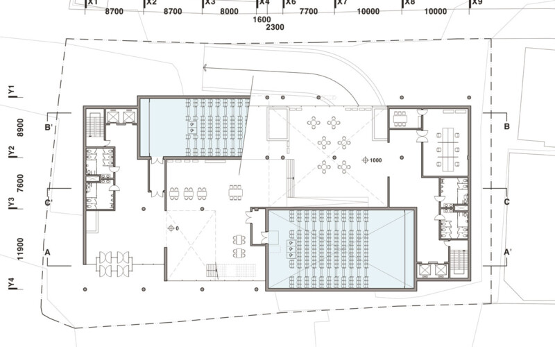
애관극장은 우리나라 사람에 의해 지어진 국내 최초의 극장으로 현재에 이르기까지 전쟁의 의한 파괴, 영화산업의 발전으로 극장의 모습은 계속 변화해왔지만 그 자리를 지키고 있는 영화관이다
하지만 영화관의 노후화와 영화관 산업의 어려움으로 애관극장이 사라질 위기에 처해있다. 애관극장은 건축적인 역사성은 부족할지라도 그 위치에 영화관의 모습으로 그 역할을 유지해 왔기에 그 장소에 담긴 역사성을 유지하기 위해 기존 애관극장의 모습을 탈바꿈하였다.
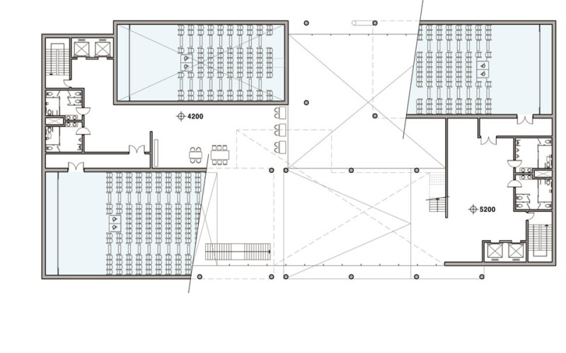
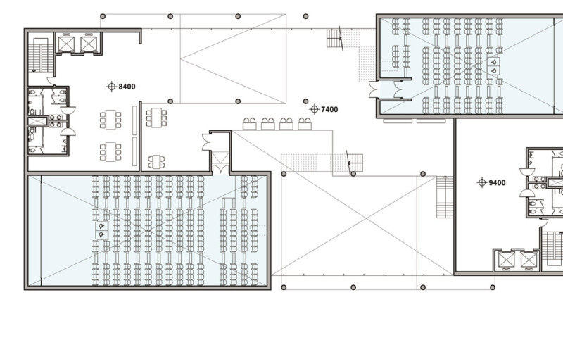
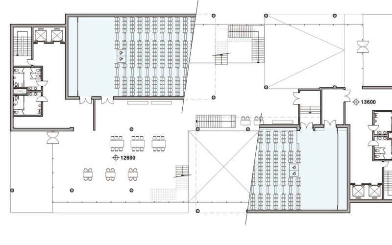
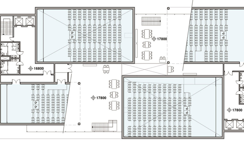
현재 영화관의 모습은 대부분 정형화되어있는데 이를 벗어나 영화관 매스들을 서로 쌓은 모습으로 내부에서 영화관 매스들을 볼 수 있도록 하여 영화만을 소비하는 곳이 아닌 그 공간 자체를 소비할 수 있게 제시하여 과거에 영화관 뿐만 아니라 주민들의 모임의 장소로 활용되던 역할을 다시 수행할 수 있도록 한다.








