권진규 기념관
권진규에게로 가는 길
박건도
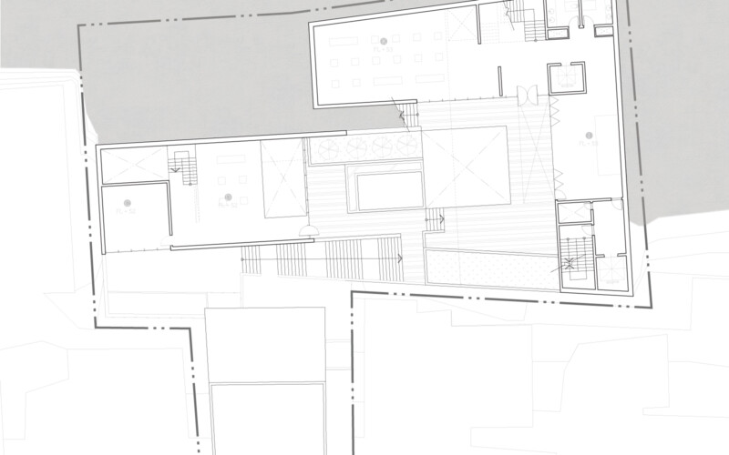
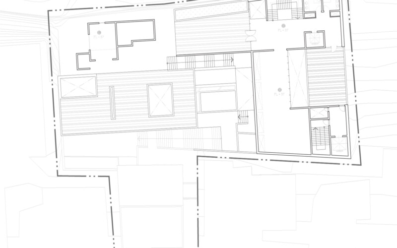
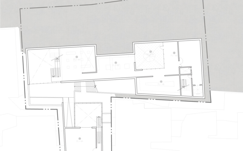
해당 프로젝트는 근대 조각의 선구자였던 권진규 조각가의 기념관을 만들고자 하였다. 권진규 조각가는 테라코타와 건칠을 이용하여 리얼리즘을 추구했으며 그의 작품은 투박하고 거칠지만 섬세하고 강렬한 인상을 준다. 그의 기념관이 지어질 장소를 찾던 중 그가 일본 유학을 마치고 귀국한 후에 만들어진 공간인 권진규 아뜰리에를 발견했다. 이 아뜰리에는 권진규 조각가가 한국에서 평생 작업을 이어갔던 공간이자 스스로 생을 마감한 공간이기도 했다. 스스로 생을 마감한 후 그대로 방치가 되어 당시의 시간성을 간직한 채 주변 환경으로부터 고립되기 시작했고 이는 점차 잊혀지고 사라지는 공간으로 인식되었다. 따라서 해당 아뜰리에를 기준으로 주변 필지를 이용하여 권진규 아뜰리에로 도달하는 길과 같은 기념관을 만들고자 하였다.
해당 프로젝트에서는 아뜰리에의 멈춰진 시간성을 외부 주택가에서부터 어떻게 연결시킬 것인가에 대해 고민하고 공간들의 연계와 시퀀스를 통해 담아내고자 하였으며, 작가의 예술세계를 현상학을 통해 공간화 시키고자 하였다.










