만남의 무대
대학로 연극 창작 지원 시설
오소정
대학로는 근대화와 교육의 장이었던 과거부터 많은 소극장이 모인 문화예술의 거리인 현재까지 많은 젊은 사람이 오가며 소통하던 교류하는 장소의 의미가 컸습니다. 하지만 현재의 대학로는 교류하는 장의 의미보다 문화를 소비하는 장소의 의미가 커졌습니다. 대학로 내에서 마로니에 공원과 서울문화재단의 마당 공간을 빼면 연극을 본 후에 카페나 식당 등 상업 공간을 이용하지 않고 교류할 수 있는 공간을 찾아볼 수 없습니다. 또한, 많은 소극장이 위치한 장소이지만 각 극장을 소개하고 현재 상영하고 있는 연극에 대한 정보를 얻을 수 있는 공간이 없습니다.
앞으로의 대학로를 위해선 사람들의 교류를 통한 문화적, 창의적 활동이 더욱 많이 일어나야 한다고 생각합니다. 그 시작점으로 대학로 중심거점시설을 형성하여 대학로의 이야기를 전달하고 사람들이 교류할 수 있는 다양한 공공의 공간을 제공하고자 합니다. 주변과 다르게 큰 스케일을 가지고 있는 아르코예술극장과 대학로예술극장을 연결하여 대학로 초입에서 중심거점시설을 형성할 수 있도록 두 건축물의 사이 필지를 대상지로 설정하였습니다.
아르코예술극장은 붉은 벽돌, 대학로예술극장은 노출 콘크리트와 철제스크린을 사용하여 1980년대의 대학로와 2000년대의 대학로 모습을 남겼습니다. 그 사이에서 현재, 2020년대의 대학로 모습을 남기고 앞으로 더 많은 대학로의 모습을 위해 벽돌과 철제스크린을 활용하여 벽돌 스크린을 형성했습니다. 이를 통해 극장이라는 프로그램으로 외부와 단절되어 있던 기존의 폐쇄적인 모습을 부분적으로 오픈하여 외부와 다양한 시선의 교류를 할 수 있도록 했습니다.
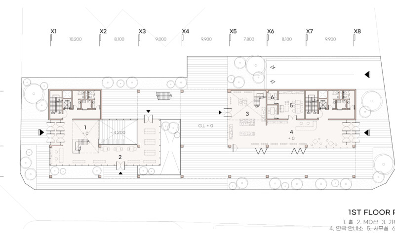
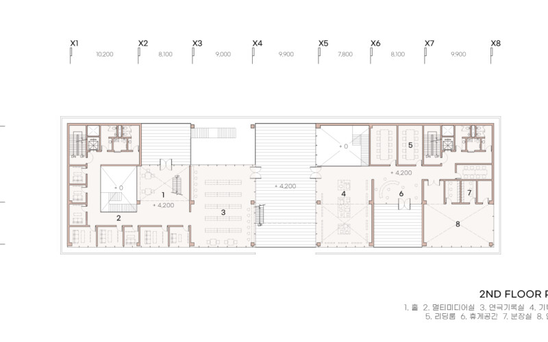
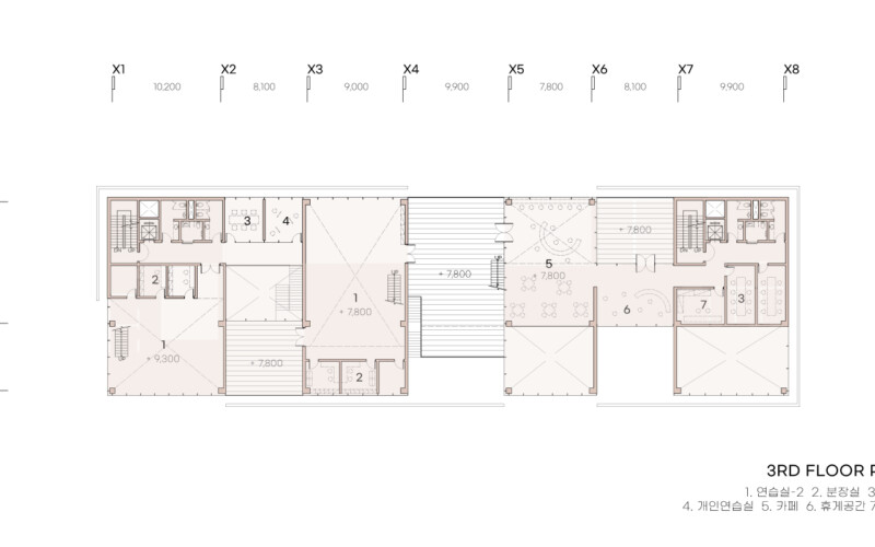
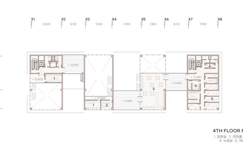
건축물 내에서는 다양한 만남을 만들어내기 위해 큰 규모의 연습실을 통해 많은 레벨을 형성하여 다양한 동선으로 만들어냈고, 그에 따라 자연스럽게 사람들과 마주쳐 다양한 교류할 수 있도록 계획했습니다. 또한, 층별로 일반인과 연극인을 위한 공간을 분리해 배치하여 내부에서 공간의 성격과 맞는 이용자끼리의 교류가 일어날 수 있도록 했습니다. 성격이 다른 공간을 연결할 땐 외부 공간을 거칠 수 있도록 계획하여 자연스럽게 일부 동선을 차단하고 연결해 외부 공간에서 일반인과 연극인의 교류가 일어날 수 있게 했고 더 나아가 건물 밖의 사람들과도 교류할 수 있도록 계획했습니다.
이 프로젝트를 통해 과거의 대학로를 기억하고 현재의 대학로를 남기며 앞으로 지금보다 더 많은 다양한 만남으로 창의적인 교류가 일어나 더욱 많은 문화적, 창의적 활동으로 대학로가 채워질 수 있기를 기대합니다.

























