문학창작플랫폼 창고
; 작가와 독자, 서로 자유로운 소통을 할 수 있는 공간
한혜정
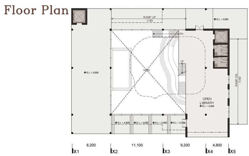
우리나라의 근대문화가 시작된 개항로, 현재 이곳은 ‘인천아트플랫폼’과 ‘한국근대문학관’이 있지만 사람들의 발길은 잘 닿지 않고 있다. ‘한국근대문학관’ 옆에 위치한 사이트에 ‘문화창작플랫폼 [창고]’를 계획해 이용자들이 개항로를 하나의 창작 플랫폼으로 인식하게 만들어 지역발전의 효과를 기대한다.
설계를 진행하면서 ‘문화창작플랫폼 [창고]’를 Shelf로, 독자와 작가들을 책으로 비유했다. 독자와 작가들이 한 공간에 모여 같은 관심사, 분야에 대해 커뮤니케이션 하는 공간을 만들어야겠다고 생각했다.
작가들은 이 문학창작플랫폼에서 개인의 공간을 가지고 작업을 할 수 있을 뿐만 아니라 라운지에서 작가들간의 소통을 할 수 있기도 하고, 독자들과 오픈 강연장에서 소통을 할 수도 있다.
또한 독자들은 도서관에서 자신의 흥미분야를 좀 더 공부할 수 있고, 작가와의 소통을 할 수 있기도 하며, 독자들끼리 서로 흥미분야에 관해 대화할 수 있다.























허유진
너무 멋저욥ㅠㅠ 자래따 😀
주연2
박박쩔어 나나멋져 저기어디야당장갈래~!~!~!~!~!~!!~!!~
김민경
너무 멋있어요…! 커뮤니케이션 하는 공간이라니 취지도 좋네요:)
앞으로의 행보도 기대하겠습니다 ~~~!