A BLEND OF YOUTH AND EXPERIENCE
고대현
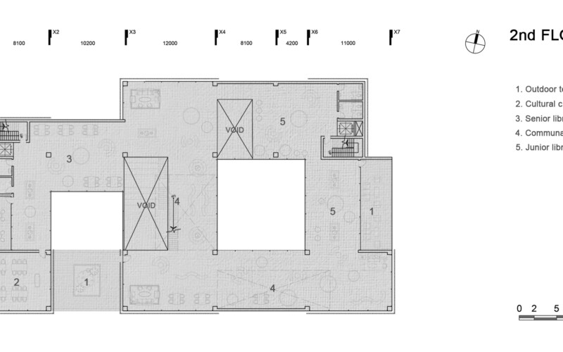
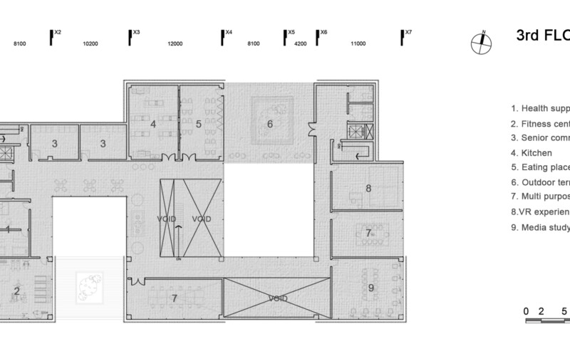
현대사회에서 시간이 지날수록 인구 고령화는 증가하고 있고 이에 따른 은퇴한 노인들의 비중이 늘고 있다. 또한 경제적 상황으로 인한 대다수의 맞벌이부부들로 이루어진 가정에서 아이들은 부모와 떨어져 혼자 있는 시간이 더욱 많아졌다. 이로 인해 은퇴한 노인들과 나 홀로 아동이 편하게 접근하고 어울릴 수 있는 노유자시설을 계획했다.
사이트의 특성 상 주변의 주택가와 공원의 연계를 통한 매스의 구성과 수직적, 수평적 공간의 구성으로 유사 연령대 간의 어울림 또는 세대 간의 자연스러운 어울림을 이끌어낼 수 있는 공간을 계획했다.



















kdj
형 고생하셨어요~!~!