Connect – Choice – Community
여러 선택적 상황을 통해 커뮤니티와 연결되는 곳
박소정
내가 가장 가까이에서 바라보며 들어오는 여러가지의 이야깃거리 중 하나가 바로 청년들의 주거이다. 여러 형태들 중에서도 직접 경험하며 생각해온 문제들을 나만의 방식으로 해결해보고자 이번 프로젝트에서 대학 연합 기숙사라는 청년들의 주거형태를 다루었다.
기숙사는 학생들에게 집을 떠나 첫 독립을 하게 되는 곳이 되면서도 사회로 나가기 전 겪을 수 있는 것들을 미리 연습할 수 있도록 도움을 주는 곳이 되기도 한다.
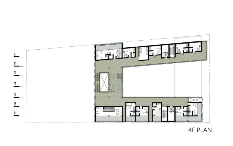
현재의 대부분 기숙사들은 개인의 방 문을 나오면 벽을 바라보거나 상대방의 현관을 바라보며 나오는 방식이다. 이러한 시각적 요소는 우리에게 서서히 스며든다.
가장 먼저, 시각적인 답답함을 풀어주고자 마주보는 실들의 간격을 넓혀 중정을 만들어주었다. 중정은 단절된 학생들 간의 관계를 시각적, 물리적으로 교류하는 데에 도움을 주는 역할을 할 수 있도록 하였다. 학생들은 중정과 방 사이에 복도를 가지고 있는데, 테라스 형태로도 보이는 이 복도의 역할은 단순히 동선적인 것만이 아니다. 중정을 바라보며 서로 간의 교류를 야기할 뿐만 아니라 자신의 방에 들어가기 전 잠깐의 대화가 이루어지는 소규모의 커뮤니티 공간이 된다.
이 복도는 모든 실들을 연결해주고 있으며 학생들 간의 유대감을 향상시켜주기도 한다. 학생들은 모든 실과 연결되어 있는 복도를 통해 선택의 폭이 넓어지고 자신이 선택한 동선을 통해 건물을 돌아다닐 수 있다.
각각의 유닛으로 들어가면 개인 테라스가 있는 방이 있고 복층으로 이루어진 방, 친구와 둘이 같이 지낼 수 있는 방 등 여러 형태로 이루어져있다. 그 중에서도, 개인의 테라스가 있는 방에서는 입면을 자유롭게 조절할 수 있다는 장점이 있다. 메탈 그리드로 이루어진 입면이 슬라이딩 방식으로 구성되어 취향이나 상황에 맞춰 채광 조절을 할 수 있다. 학생들에게 또 한번의 선택의 기회가 생기는 것이다.
개인의 생활을 무시하면서 커뮤니티를 강조할 수는 없다. 학생들의 자발적인 선택에 의해 커뮤니티를 교류하려 하였고, 이를 동선이나 시선을 이용하여 해결해보고자 하였다.




















kdj
소정이 고생했당
P
내부 공간에 있어서 시선을 비롯한 커뮤니케이션을 중점에 두고 중정을 계획한 점이 잘 보이고
정형적인 기존의 밀집 주거 공간의 틀을 벗어나 다양한 규격을 시도한 점이 인상적입니다.
지난 시간 동안 수고 많으셨습니다. 앞으로의 행보를 기대합니다.
김정도
신촌 이어 받겠습니다,,, 5년 동안 수고 많았어!