Flowers on Concrete
Renovation of existing abandoned buildings
과거 현재 그리고 미래
이효준
– Orientaion
인식, 사람들은 살아가면서 어떠한 대상의 외관이나 주변에서 하는 말을 듣고 많이 현혹되어 잘못된 판단을 한다.
외모지상주의인 현재에 누군가는 외관을, 누군가는 그저 남들에게 잘보이기 위해 자신을 가꾸려고하고 진정성이 있는 자신을 표현하지 않는다. 또한 사람들은 대상의 내면을 보기보다는 그저 자신의 이익을 챙기려고만 하는 생각을 갖고 있다.
대상의 외관적인 부분도 중요하지만 내면을 보았을 때 그 대상의 진정성이 진심으로 보이고 내면의 아름다움 또한 찾아볼 수 있다.
안양시 만안구에 위치한 원스퀘어 건물 또한 위의 이야기와 비슷한 내용을 갖고 있다.
과거에는 안양을 위해서 백화점 건물이 들어와 사람들에게 편리와 편의성을 제공하고 사이트의 주변의 맥락과 비슷하게 주변의 상권 또한 발전할 수 있게 도움을 주려고 했다. 하지만 IMF로 인하여 시행사가 부도가 나게 되었고 약 70%의 공정이 진행된 상태에서 약 25년째 방치되어 사람들에게 폐건물, 흉가와 같은 인식을 주고 있다.
– Concept
시민이 행복한 스마트도시 안양
안양시는 시민들과 함께 소통을 하며 스마트한 도시를 만들어 가겠다는 목표를 가지고 시민들과 소통을 하고 있습니다.
하지만 사이트가 위치한 곳은 안양의 다른 지역에 비해 먼저 활성화가 되었으며 그로인하여 뻗어나가 더욱 발전을 하였습니다. 그리고 신시가지의 발전으로 인하여 안양역 앞 일번가는 구시가지가 되었고 코로나로 인하여 더욱 옛 도시와 같은 느낌을 주었습니다. 따라서 안양시의 비전슬로건과 같이 시민들과의 소통을 할 수 있는 공간을 만들어 주면서 사이트의 주변으로는 공원과 녹지가 부족하다고 판단하여 공원을 건물로 유입시켜 수직공원을 형성하였습니다. 그러면서 기존의 흉물스럽다고 생각이 들었던 기존의 건축물에 생명이 자라고 그로인하여 안양, 이 건축물만의 새로운 아이덴티티를 확립하고자 하였습니다.
– History fo Anyang
안양은 옛날부터 사람들의 많은 왕래가 있었던 곳이며 계속해서 꾸준한 발전과 새로운 것을 보여주고자 하였습니다. 그리고 안양에는 생각보다 많은 문학, 예술, 공연 등 많은 문화적인 활동이 많이 있었지만 현재에는 그러한 문화가 많은 비중을 잃었으며 사이트의 주변의 이동하여 평촌, 범계, 석수 등의 곳에 문화가 있는 것을 볼 수 있었습니다.
– Site Analysis
사이트의 동쪽에는 안양시외버스터미널, 안양역이 위치하고 있으며 사이트의 주변에는 안양지하상가에서 올라오는 길이 있어 사이트의 주변으로 유동인구가 많이 있으며, 남쪽으로는 안양 8경의 하나인 안양일번가가 북쪽으로는 슬럼가가 위치하고 있는데 활발하게 이동을 하는 안양일번가와 머무르는 공간인 슬럼가의 사이에 사이트가 위치하고 있어 그 두 개의 지역성을 사이트 내에서 해결을 할 수 있으면 좋을 것 같다고 생각하였습니다.
– Key Word
3개의 키워드를 통하여 이 건물의 주제를 잡았습니다.
1, 재발견
안양에 시민들을 위한 많은 공간과 장소가 있지만 안양일번가에는 그러한 공간이 많이 부족하다고 파악하였으며 공원 또한 먼 곳에 위치하고 있는 것을 볼 수 있었습니다. 따라서 시민들을 위한 공간과 장소성, 그리고 안양에있는 많은 예술가들을 위한 공간을 재발견 하고자 하였습니다.
2. 재구성
약 25년간 방치되고 관리가 되어지지 않던 건물에서 새로운 구성을 통하여 기존의 사람들의 인식을 바꾸어 주면서 기존의 건물이지만 그렇지 않은 느낌을 주고 폐가라는 인식에서 이제는 시민들에게 필요할 수 있는 공간이 되고자 재구성하였습니다.
3, 상징성
안양역 하면 이제는 폐건물이 있다. 라고 할정도로 많은 시민들에게 안좋은 인식을 부여하였는데 이번 계획을 통하여 안양의 랜드마크로서의 역할과 자주가고 싶어지는 건물과 같은 좋은 인식을 심어주어 시민들에게 친근감을 주고자 하였습니다.
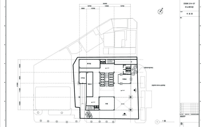
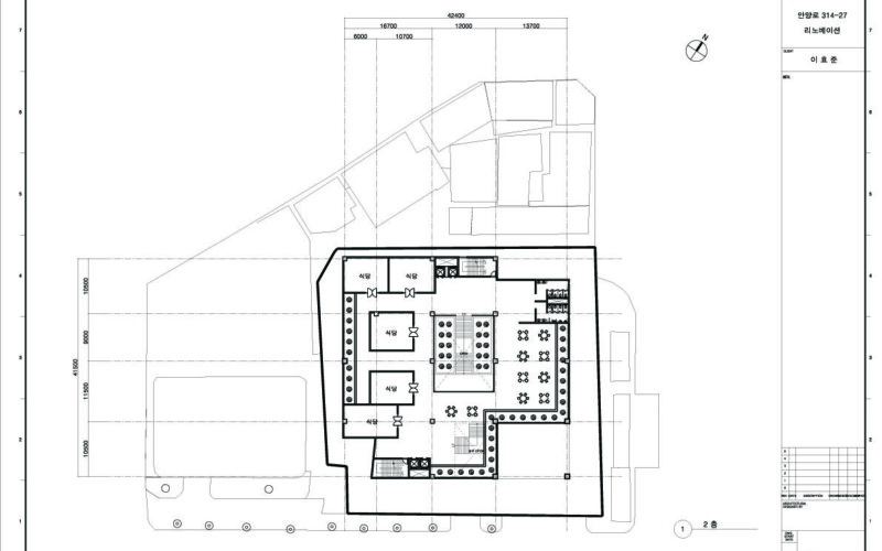
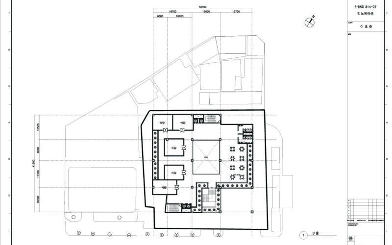
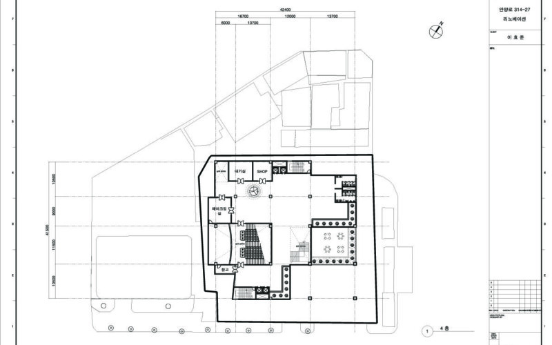
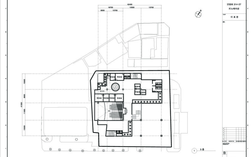
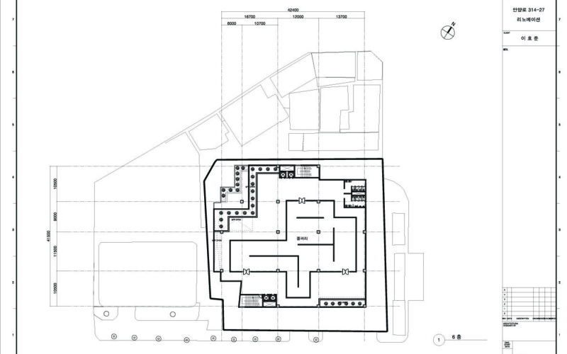
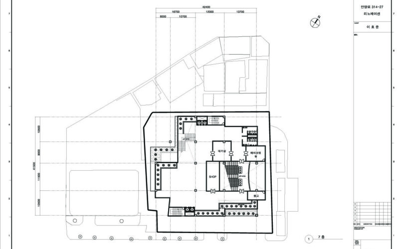
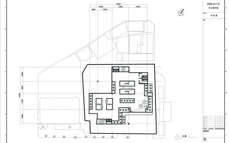
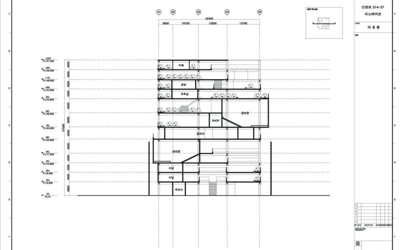
따라서 층별계획으로 저층부에는 시외버스터미널, 안양역, 안양지하상가와 같이 접근성이 편리하고 사람들이 부담을 가지지 않으면서 편하게 쉬고, 편의시설을 갖추어 줄 수 있는 공간을, 중층부에는 예술가들이 활동 할 수 있는 공간과 시민들과 예술가들의 소통의 장을, 고층부에서는 예술을 접하려면 지역을 이동하는 불편함을 해소하고 시민들이 예술을 체험, 경험, 배움을 할 수 있는 공간을 계획하였습니다.
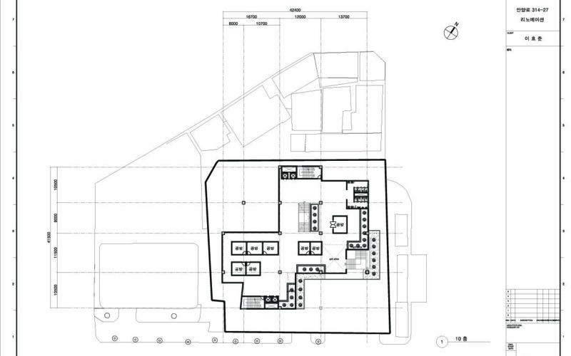
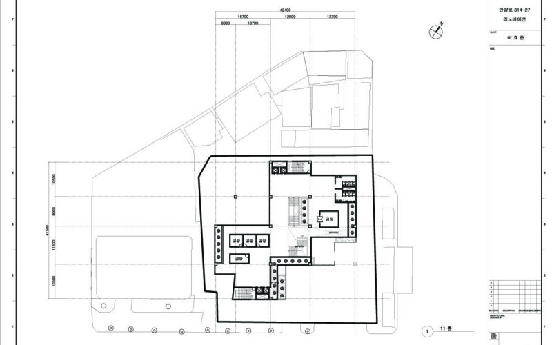
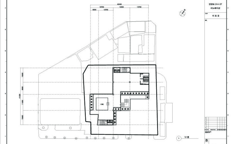
– Plan
기존구조체에 구조보강을 통하여 개방감과 층과 층사이의 경계를 최대한 허물어주고 모든 공간을 자유롭게 이동할 수 있는 동선을 배치하여 많은 시민들이 쉽게 건물에 접할 수 있게 생각하였으며 주변에 휴식공간과 공원이 부족해 보여서 건물안으로 대입 후 수직정원을 배치하였습니다. 또한 시민들이 문화를 쉽게 접하고 체험할 수 있게 안양시의 비전슬로건을 따라 계획을 하고자 하였습니다.
















