Habitation Bridge
한지영
프로젝트의 대상지는 마포구 상암동의 난지도이다. 난지도는 서울시가 근대화되는 시기인 1978년부터 1993년까지 15년동안 서울시의 생활 쓰레기와 건축 쓰레기를 담아내어 매립되고, 현재 98m의 엄청난 인공산으로 변모한 장소이다. 과거 2002 월드컵 경기장이 상암동으로 결정되면서 난지 매립지는 5년간의 안정화 사업을 진행하였고, 2002년 5월에 공원으로 모습을 바꾸었다. 15년간 쌓인 엄청난 두 개의 쓰레기 동산은 5년만에 안정화가 되었다고 하며, 두 개의 동산 사이 60m의 엄청난 골짜기에는 마포자원회수시설이 위치하여 아직도 쓰레기를 소각하고 있다. 하지만 이 소각장 또한 10년 후에 지하로 사라질 계획이라고 발표하였다. 즉, 과거 쓰레기를 무차별적으로 매립하던 장소를 흙으로 덮고, 그 위에서 엄청난 쓰레기를 소각하며 다이옥신을 내뿜고 있으며 존재하지만, 이도 땅 밑으로 숨어 들어갈 예정이다. 그렇다면 과연 10년 후 소각장이 비워지게 된다면 이 골짜기는 어떻게 우리에게 잔존해야 하는가?
현재의 난지도는 마포구 전체 면적의 10%를 차지하는 엄청난 규모이지만, 공원 상부면 만을 이용하며, 주변 경사면과 골짜기 주변은 시민들이 거의 이용하지 못하고 있다. 이는 난지도의 거대 골짜기의 공간 방치이자 도시와의 고립의 원천이라고 생각하며 골짜기의 공간변화를 통해 난지도의 장소적 인식과 정체성을 변화시키고자 하였다.
# 브릿지
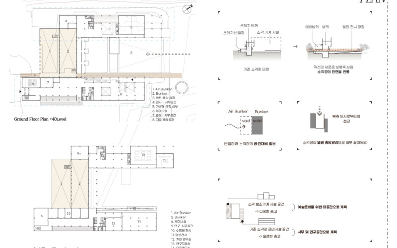
거대 골짜기의 공간 방치, 도시와의 고립을 해소하기 위한 공간변화로 난지도 상부 공원만을 이용하는 사람들의 행위에 한계가 있다고 생각하고, 분단된 두 개의 공원을 동선으로 연결하며 그 사이 소각장과 연결되는 공간 속에서 인간, 도시, 자연, 사회가 관계성을 맺도록 한다.
# 환경문제
난지도는 과거 서울 근대화 과정의 모든 쓰레기가 모였던 쓰레기 매립지로 서울근대화의 거대한 타임라인이며, 쓰레기 매립지이자 소각장의 장소로서 쓰레기 및 환경의 논쟁이 되는 독특한 장소이다. 이러한 장소성을 바탕으로 과거의 켜인 쓰레기 매립과 현재의 켜인 쓰레기 소각장이 존재하는 상황에서 미래에는 어떻게 환경에 대처해야 해야 하는가를 논의하는 중심지이다.
Habitation Bridge 프로젝트는 땅의 켜를 이해하고 과거와 현재를 담아 어떻게 미래에 반응해야 하는 것에 대해 고민하였던 프로젝트 이다. 기존의 도시조직과는 사뭇 다른 장소에서 그 장소성의 의미를 찾고 그 곳에서만 할 수 있는 땅, 사회, 도시의 이야기를 담아내는 것이 중요하다고 생각하였다. 이 프로젝트가 거대 조직 속에서 물리적으로 단절되었던 두개의 공간을 연결하고 공간 사이에서 다양한 문화시설을 접하면서 시민들의 일상에서 역사와 환경에 대한 고민과 이야기를 할 수 있는 공간이자 환경문제를 이야기하는 중심공간으로 시민들에게 작용하길 바란다.










