Place for History & Workers
노동인권기념관 인천 동일방직 리노베이션 프로젝트
박현웅
대상지로 선택한 인천 동구 만석동의 동일방직 부지는 공장 지역과 주거지역이 만나는 지점이며 주거지역 내부로 침투해 있는 형태로 자리 잡고 있다.
개항과 함께 부흥한 개항동과 인근 지역은 일제강점기 시절 지어진 다수의 건축물이 존재하는데, 이러한 건축물들은 근대건축문화유산이라는 이름 아래 새롭게 전시관이나 박물관 등의 다양한 용도로 재사용되고 있으나 개항이라는 이름 아래 수탈의 역사 또한 우리는 조명해야 함을 잊고 있으며 이들을 위한 공간은 부재한 실정이다. 동일방직 또한 노동인권에 관련된 이야기를 가지고 있어 이를 이용해 연결되는 역사의 켜들을 공장의 개방과 함께 드러내고, 시민들에게 부족한 주민문화시설을 제공하고자 기념관과 주민 간의 연결을 만들어 줄 수 있는 노동인권기념관을 계획하고자 한다.
인천에 존재하는 역사지만 기억 아래 묻힌 잊힌 과거들은 다양하다.
이들을 시간과 벽이라는 키워드를 통해 재조명하고자 한다.
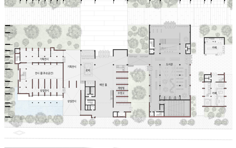
늘어선 3개 동의 건물을 하나로 엮는 축을 시간으로 설정한 후 이들을 리노베이션 하는 과정에 있어 보존되는 벽을 시간을 저장하는 하나의 저장 매체로서 잊힌 과거들의 역사를 저장하며 이를 전시한다.
마무리하며.
프로젝트의 주안점은 연결을 구성하는 과정에 있어서 기존 건축물이 가진 독창성을 어떤 방식으로 대하는가에 있었다.
거시적 관점으로 보았을 때 3개 동의 건물에 과격한 방식의 건축적 터치가 들어간다면 이들의 균형은 부서지고 전시공간과 시민들의 문화공간을 잇는 ‘연결’이라는 프로젝트의 궁극적 목적을 상실하게 될 것으로 생각했고,
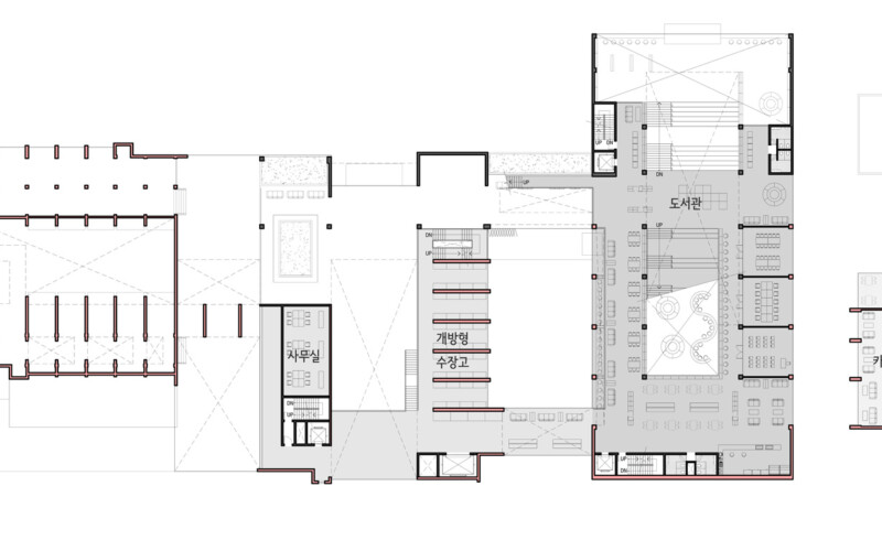
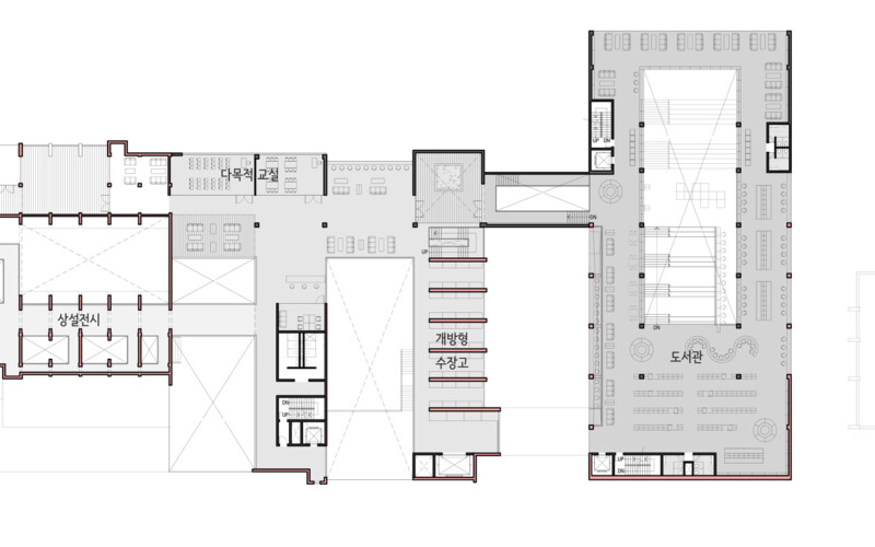
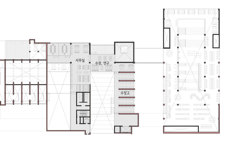
기능에 따른 핵심공간은 3개의 전시, 수장, 열람 공간이 가져가지만, 그 사이를 잇는 연결 또한 무시할 수 없는 중요도를 가질 것으로 보였다.
따라 프로젝트의 리노베이션 계획은 다소 소극적으로 진행되었고, 덧살을 붙이는 형태의 계획이 도출되게 되었다.
다만 내부에 있어서 이들이 가지고 있던 그들만의 멋을 강조하고자 하였다.
기숙사와 체육관, 목욕탕은 용도에 따른 그들만의 목적에 따른 스케일을 가지고 있었고 이는 자연스레 구조, 형태로 연결되어 표출되어 있는 직설적인 건축이었다.
따라서 새로운 기능이 부여되었을 때 이들이 괴리감 없이 작동하게 하기 위해 어우러지게 연결하는 것이 건축가의 일이라고 생각하였다.
해당 프로젝트를 진행하며 부딛힌 여러 문제를 해결하며 마음속 깊이 새겨진 명언이 있다.
“너에게로 가지 않으려고 미친 듯 걸었던 그 무수한 길도 실은 네게로 향한 것이었다.”
[나희덕, 푸른 밤]
“너에게로 가지 않으려고 미친 듯 걸었던 그 무수한 길도 실은 네게로 향한 것이었다.”
[나희덕, 푸른 밤]




















