Follow the unconscious : 무의식을 따라가다
이유리
넘쳐나는 매체와 정보 속에서 본인이 원하는 것만 골라서 주입되어지는 시대에 문화적으로 고립되어있는 것이 아닌가하는 생각에서 시작되었다.
일반적인 전시는 작품의 순서를 정해서 모든 관람객이 하나의 시퀀스를 따라야 한다.
하지만 이 프로젝트는 관람객이 능동적으로 본인의 시퀀스를 정할 수 있다.
따라서 기존의 갤러리를 관람하는 관람객의 감정은 제한되었지만, 이 갤러리를 경험하는 모든 사람의 감정은 각각 다르다.
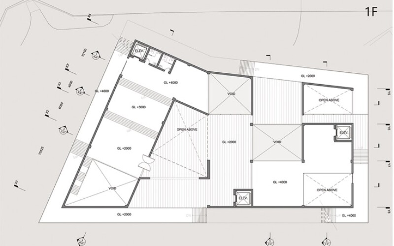
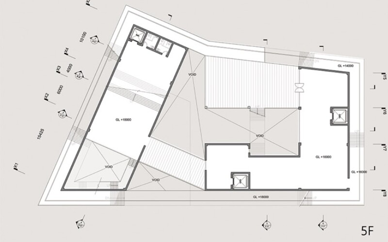
서로 다른곳에서 출발하여 돌아 올라가는 두 외부동선이 합쳐지고 사이에 갤러리의 프로그램을 담은매스들이 끼워진다.
갤러리의 프로그램은 이동하면서 관람하는 것이므로 매스를 일종의 동선으로 생각했다.
결국 두가지의 동선 사이에 다양한 동선들이 겹쳐치고 교차하면서 무수히 많은 동선을 만들어 낸다.
기존의 갤러리는 홀에서 전시관을 들어가거나 홀에서 시작해서 순서대로 전시관을 들어가 관람하였다.
그러나 이 갤러리는 시퀀스가 정해져있지 않기 때문에 홀이 분화되어 갤러리 동선 곳곳에 위치하며 모두 외부로 빠졌다.
따라서 사람들이 홀에서 휴식을 취하거나 갤러리의 연장이 될 수 있으며, 두개의 큰 아트리움과 연결되어 수직적으로 연장된다.
전시방법에 대하여 현재의 시스템이 아닌 다른 방법과 패러다임에 대해 의문을 던지고 제시하는 작업이며,
능동적으로 자신의 관심사를 찾아가고 무의식을 따라가며 우연에서 오는 즐거움이 있는 공간이다.











