Sharing Experience
김찬수
- 주제
 경험의 공유
- 들어가며
 일반적으로 사람들은 연극에 접근하기 어려운 문턱이 존재한다. 이러한 문턱을 만드는 요소는 정보의 부족이라는 문제에 의해서 발생한다. 나는 이문제를 해결하기 위해서 연극 공연이 활발히 이루어지는 대학로를 중심으로 이러한 문제를 해결할 것이다.
- 컨셉
 일반인들이 공감대, 정보, 공통점, 해석을 공유할 수 있는 장소를 통해 서로 경험을 공유함으로써 연극에 쉽게 접근할 수 있도록 할 것이다.
- 디자인 전략
 개인 열람실
 배우에 따른 해석의 차이를 똑같이 체험해 공감대를 형성할 수 있는 소규모 영상실
 전시실
 관람 및 체험을 위한 연극에 사용되는 소품 사용하며 외부 공간과 연계하여 여러 경험을 가능케 한다.
 커뮤니티 공간
 체험 공유를 통한 연극 정보 공유 및 공감대 형성 공간
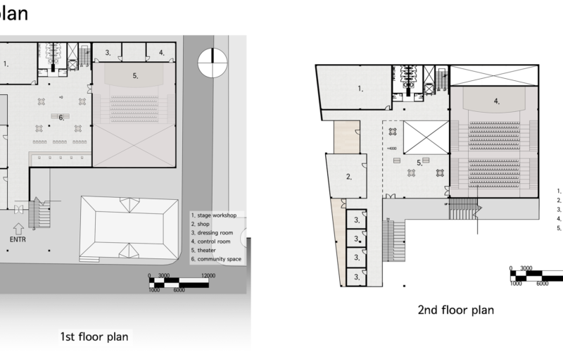
 기능분포
 한쪽으로 치우친 극장이 아닌 적절한 분배와 중간 정도의 공간으로 조화를 이루고자 한다.
 
					











