TERRAFFICE
Co-living & Co-working in Seoul
임두경
재택근무자의 수는 매년 증가하고 있지만 현재 주거의 형태는 그들에게 맞지 않다. 그들에겐 집에서 보내는 시간이 많은 만큼 더 큰 주거 영역과 함께 근무지와 휴식처의 공간이 분리된 형태가 요구된다.
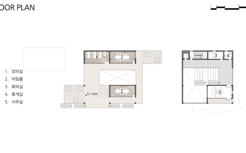
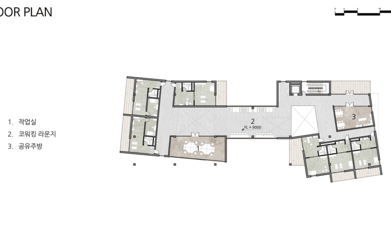
이를 반영하고자 늘어나는 1인 가구 재택근무자들을 위한 공유 주거 ‘테라피스’를 제안한다. 테라피스는 테라스와 오피스가 결합된 개념으로 주거 공간과 함께 있는 개인의 야외 공간과 주거와 분리된 업무 공간을 나타낸다. 코워킹 라운지에서 개인 업무와 더불어 이웃과 아이디어에 대해 의견을 협력하여 하나의 업무를 형성하는 가능성을 보여준다. 또한 다양한 사업 아이템을 지역 주민들에게 선보이면서 그들과 소통하며 다양한 가치를 만들어 낼 것이다.
















