THE TEMPERATURE OF THE BOUNDARY
장예나
a space of rights that is not owned It is a project that allows the process of allowing
those on the border of self-reliance and protection to move on to the next stage to be warmer.
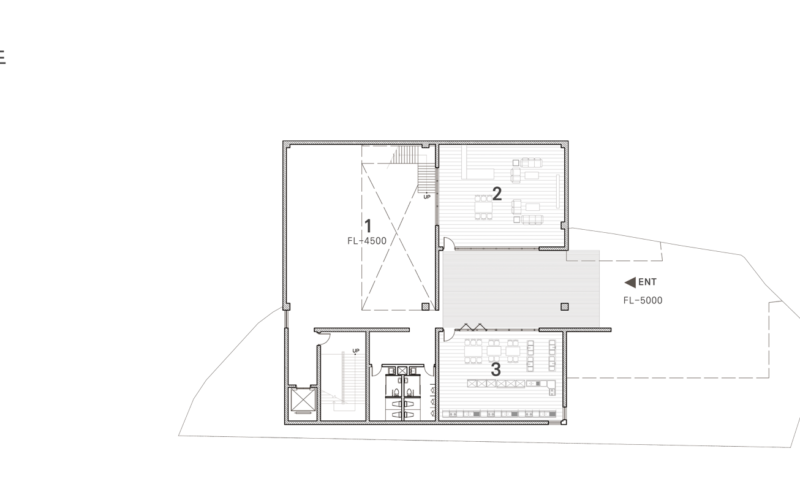
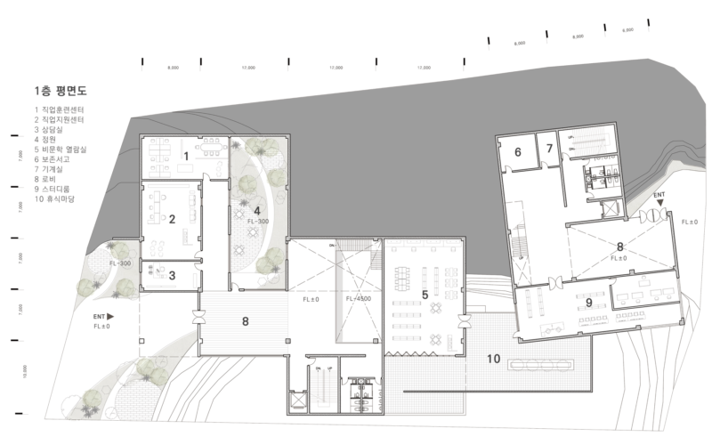
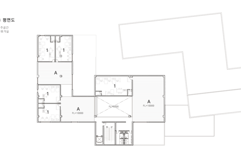
소유되지 않는 권리로서의 공간.다음 단계로 나아가기 위한 자립과 보호의 경계 사이에 있는 이들을 위한 임시 주거공간과마을도서관의 프로그램이 결합된 프로젝트.
이들이 마주하는 경계가 보다 따뜻하고 건축적으로 권리를 누릴 수 있는 공간이 되도록 설계함.











