Trait d’ Union
인현동 책과 인쇄박물관
장영성
조합하다에 의미를 가진 제 프로젝트의 주제는 인현동이라는 밀도 높은 도시공간 속에서 공공건축이 이 밀도에 대응하는 방식과 더 나아가 을지로 일대 도시개발에 비판을 목적으로 하고 있습니다.
을지로 일대 도시개발, 혹은 도시재생 사업들을 보면 대규모 필지들을 비워내 새로운 무언가로 채움으로써 그 밀도를 조절하고, 균형을 맞추고 있습니다. 이러한 계획들이 세운상가라는 큰 맥락과 도시가 함께 공존해가는 방향에서 잘못되었다고 판단하기는 어렵습니다.
하지만 저는 어떤 도시 문제를 해결하기 위해서 건축으로 거대한 작업을 하는 시대는 지났다고 생각합니다.
앞으로 이곳 인현동 일대, 도시개발은 큰 맥락에서 시작하는 것이 아닌, 본 계획처럼 큰 맥락에 일부를 포함하는 것을 시작으로 변화가 만들어졌으면 좋겠다는 생각을 가지고 프로젝트를 준비했습니다.
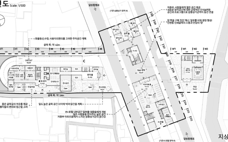
인쇄골목의 공간 구조를 분석했을 때, 이 곳 골목에는 일정한 방향성을 갖는 규칙성이 있었고, 그 규칙은 세운, 삼풍상가군에 강한 축과 평행 또는 직각, 대칭을 이루는 구조 때문이라고 생각했습니다. 이러한 주변 맥락에 대한 분석을 토대로 계획 대지 내 매스들을 재조합하는 프로세스를 거쳤습니다. 기존에 있었던 작은 매스들이 재정립되면서 계획대지에 필지를 따라 삼풍상가군 건물을 관통하여 그 너머로까지 이어지고, 작은 조합들이 큰 조합으로 바뀌는 모습을 보여주고 있습니다.
이 때 삼풍강가군을 관통하는 이 접점에서 관통하는 방식은 지금까지의 방식과는 방식으로 강한 축에 반대되는 다른 축을 넣으면서 이 접점에서 새로운 변화를 도모하였습니다.
삼풍상가에 의해 단절되었던 인쇄골목을 도시와 대면할 수 있도록 열어주었고, 사람들의 만남과 커뮤니케이션 등의 다양한 행태가 이루어질 수 있도록 의도하였습니다.
저는 이번 프로젝트를 하면서 건축은 대지가 가진 장소성을 고려해야 한다는 것에 목표를 두었고, 인현동 인쇄골목이라는 배경 속에서 현대 도시의 무자비한 개발 모습과, 도심산업이라는 오래된 것이 가지는 가치에 대해 이야기 하면서 이 땅의 미래 모습은 큰 맥락에서 시작하는 것이 아닌 일부 또는 부분을 포함한 계획에서부터 하나하나 바꿔나가는 것이 어떤가 하는 계획을 제안합니다.

















