2021 Graduation Portfolio

남방제성지역사박물관

김재선

남방제성지역사박물관

김재선

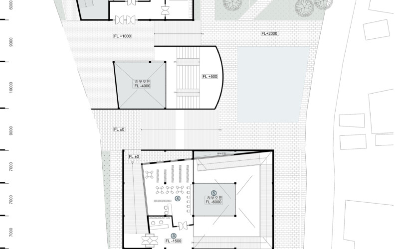
남방제성지는 순교자 및 무명 순교자들의 꽃이 지던 곳이다. 이 프로젝트의 초점은 무명 순교자를 기리며 천주교인에게는 교육의 장소, 시민들에게는 문화의 장소를 제공함으로써 종교에 대한 편견을 타파하고, 한국 천주교가 시민들에게 더욱 다가가서 지금보다 더 큰 의미의 종교로 발전하고 사회적 역할을 수행하는 것이 목표이다.

Work Details

답글 남기기

이메일 주소는 공개되지 않습니다. 필수 필드는 *로 표시됩니다