시장과 청년의 만남
수원 영동시장 리노베이션
심재혁
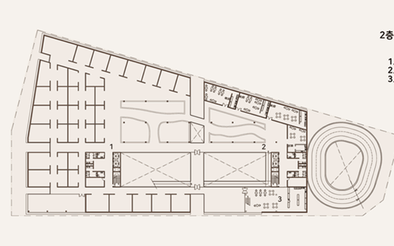
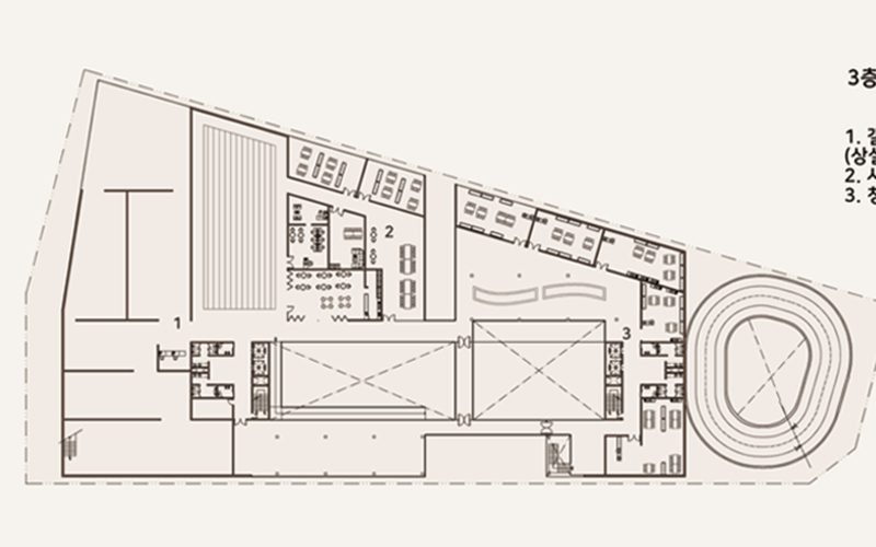
수원 영동시장은 100여 년의 역사를 지닌 전통 재래 시장이다. 재래 시장 현대화로 상가형 시장으로 탈바꿈하였지만, 실상은 내부 시설의 사용율이 낮고 300여 개의 상점들로 혼잡한 복도는 현대화라는 말이 무색해 보였다. 또한, 시장 활성화를 위한 청년 창업 공간이 존재하지만 여러 가지 문제로 인해 사용율이 굉장히 낮았다.
전통 재래 시장과 청년 창업 공간이 가지는 각각의 성격과 이 둘의 만남으로 인해 생기는 효과를 기대 하였고, 재래 시장보다 대형 마트를 더 많이 찾는 요즘 리노베이션을 통해 이 곳을 활성화 시키고 싶었다.
















