2024 Graduation Portfolio

활짝 푸른 배움터

방수민

활짝 푸른 배움터

‘열린 교실’ 초등학교 프로젝트

방수민

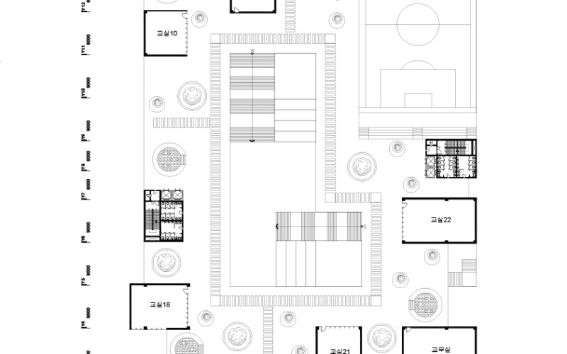
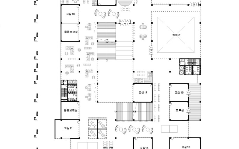
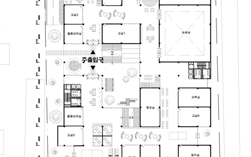
시대가 지나감으로써 편복도 교실을 지양하며 새로운 건축학이 요구되고 있지만 오늘날까지도 학교의 전형적인 모습을 떠올리면 편복도 중심의 학교를 떠올린다. 이러한 편복도 중심의 학교는 아이들에게 삭막하고 폐쇄적인 공간을 만들어낸다. 본 프로젝트에서는 초등학교 아이들에게 맞는 자유롭게 뛰어놀고 쉬며 공부할 수 있는 초등학교를 설계하고자 하였다.

Work Details

답글 남기기

이메일 주소는 공개되지 않습니다. 필수 필드는 *로 표시됩니다