검역본부, 안양시민의 문화베이스 캠프
기억은 건물 속에 가능성은 지하에, 자연은 모두에게 열린 땅위에
이은혜 LEE EUNHYE
dldns153@gmail.com
안양시 농림축산검역본부 리노베이션 프로젝트
1. 프로젝트 개요
이 프로젝트는 안양에 위치한 옛 농림축산검역본부 본관을 보존하면서, 주변 공간을 철거 및 재구성하여 시민을 위한 문화·자연 기반의 열린 공간으로 재생하는 안양 지역재생 프로젝트이다.
본관은 건축가 이광노의 초기 모더니즘 양식을 담은 역사적 가치가 있는 건물로, 건축과 예술(김세중 작가의 부조 작품)이 어우러진 상징성을 지닌다. 그러나 현재는 방치되고 있어, 이를 시민에게 다시 돌려주는 문화 베이스캠프로 재탄생시키는 것이 핵심 목표이다.
2. 디자인 전략
– 기억의 보존 (Memory)
본관 건물은 역사적 가치를 지닌 핵심 구조물로 그대로 보존한다.
건물 속에는 과거를 기록하고 전시할 수 있는 아카이브 측면적인 성격을 부여한다.
– 가능성의 창출 (Possibility)
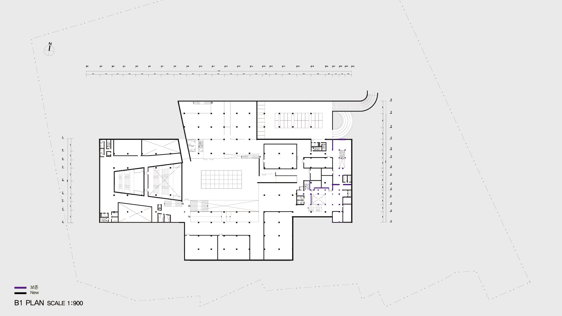
기존 건물을 둘러싼 증축·부속 건물들을 철거하고, 그 자리를 지하 문화공간으로 전환한다. 지하는 공연장, 다목적실, 시민 프로그램실 등 다양한 활동을 담아낼 수 있는 새로운 가능성의 장이 된다.
– 자연과의 공존 (Nature)
지상은 모두에게 열린 녹지 공간으로 설계된다. 시민들이 자유롭게 산책, 휴식, 커뮤니티 활동을 즐길 수 있는 ‘어반 카펫(urban carpet)’ 개념을 적용해, 녹지와 광장이 하나의 흐름으로 연결된다.
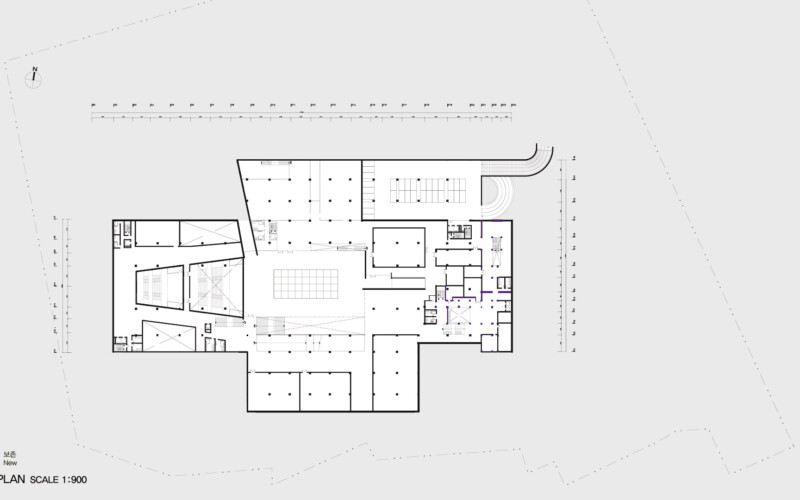
3. 주요 공간 구성
– 지상 (Open Ground)
본관 앞 광장은 열린 마당으로 활용되며, 주변은 산책로·수공간·잔디광장·야외전시장 등으로 구성된다. 안양 시민들의 일상 속 쉼터와 문화 체험의 장으로 기능한다.
– 지하 (Cultural Basecamp)
지상 광장과 램프로 연결되는 지하 공간은 공연장, 교육실, 다목적 문화실 등 프로그램적 다양성을 담는다. 단면 다이어그램에서 보듯, 지상과 지하가 시각적·동선적으로 자연스럽게 이어지도록 설계하였다.
이 프로젝트는 단순히 건물을 재생하는 것이 아니라, 기억(본관 보존), 가능성(지하 문화공간), 자연(열린 녹지) 이라는 3가지 층위를 겹겹이 쌓아 올려, 지역의 역사성과 현대적 문화 요구를 동시에 충족시키는 새로운 도시적 플랫폼으로 자리매김한다. 특히, 안양 시민들이 잊혀졌던 공간을 다시 기억하고, 활용하며, 함께 누릴 수 있는 장소성을 제공한다는 점에서 큰 의미가 있다.












