현재의 사회문제로 사회 기반 시설이라 불리는 하수종말처리장, 소각장, 정수장과 같은 시설들은 우리 사회에 없어서는 안 될 시설들 중 하나이나 도심 속 혐오감을 준다는 이유로 시설유치를 반대하거나 더 나아가 폐쇄까지 이어지는 경우가 많습니다. 이로 인해 폐쇄된 유휴 공간들은 철거의 위험성 때문에 짧게는 몇 년 길게는 몇십 년 동안 폐쇄되어 도심 속 단절을 야기하고 있습니다. 우리가 살아감에 있어 이러한 사회 기반시설의 확충은 필수 불가결한 상황입니다. 더 이상 님비현상으로 인한 사람들의 인식을 개선하고 폐쇄된 공간을 바꿀 수는 없을까라는 의문점이 제안하고자 하는 프로젝트의 시발점입니다.
이번 프로그램의 계획대지는 분당 구미동 하수처리장입니다. 해당부지는 탄천과 동막천이 만나는 합수부지로 사회기반시설에 대한 님비현상으로 인해 약 30년간 폐쇄되어 있습니다. 오랜 시간 동안 폐쇄된 부지는 도시적 단절을 야기하고 있습니다. 이에 대한 사람들의 인식을 개선하고자 물을 사용하는 하수처리장의 흔적의 연장선으로 물을 활용한 공간을 담는 복합 상업공간을 계획하고자 합니다.
님비현상으로 인해 폐쇄된 공간으로 인한 단절과 부정적 인식을 완화하고자 열린 공간의 계획하고 더 나아가 커뮤니티의 확산을 통해 이전 공간의 흔적을 기억하고 이에대한 부정적 인식을 완화하고자 합니다.
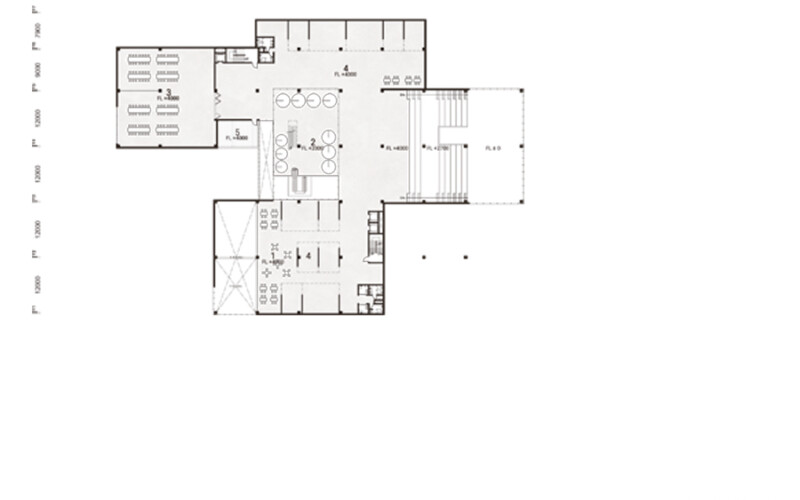
매스 계획은 복합 상업 공간의 주요 프로그램인 브루어리의 특징에 따라 술을 주조하는것에 있어 시간이 쌓이고 일련의 과정이 중첩되며 만들어지는 주조의 원리, 이전 하수처리장을 이루는 벽돌이라는 재료의 쌓임이라는 특징에서 중첩이라는 디자인 요소를 사용하였습니다.
다양한 높낮이의 매스 형태를 비움과 중첩이라는 요소를 통해 공간을 구성하고 맞물리는 공간에서 시각적 교류를 활성화하고자 합니다.
하수처리장은 물과 기계의 상호작용으로 물을 재생시켜주는 공간이라면 앞으로의 공간은 물이 흐르는 소리를 듣고, 수공간을 보고, 브루어리를 통해 만들어진 맥주를 맛보며 물과 사람 그리고 기계가 상호작용을 통해 부재된 커뮤니티를 되살리고자 합니다.
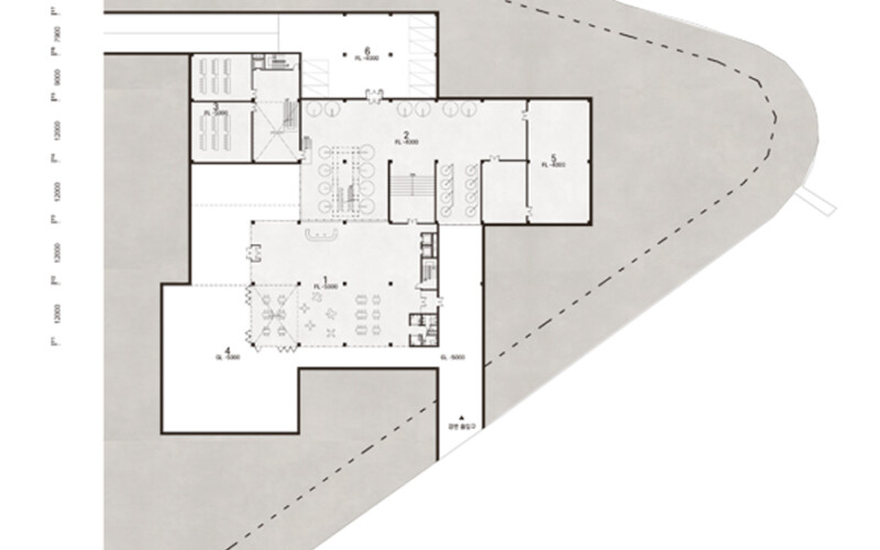
중앙의 브루어리를 기준으로 왼쪽은 교육과 도슨트 전시를 관람하는 정적인 공간 오른쪽은 맥주를 시음하며 경치를 구경하고 상업공간을 이용하며 사람들과 어울릴 수 있는 공간으로 구성하였습니다. 다른 공간들과 높이가 다른 브루어리가 맞물리며 생기는 단차를 통해 사람들이 맥주가 만들어지는 과정을 구경하고 돌아 볼 수 있도록 계획 하였습니다.
본 프로젝트는 공간을 체험하고 돌아보며 사람들과의 교류, 다양한 체험을 줄 수 있는 공간을 구성하는 것에 초점을 맞추어 진행하였습니다. 강변으로의 진입부터 주출입 레벨까지 공원 녹지를 통해 자연스럽게 진입할 수 있도록 하였으며 이전 물을 활용한 공간이 사람들에게 어떤 경험을 줄 것인지 고려하였습니다. 더이상 부정적인 인식 속에 방치된 공간이 아닌 수 많은 사람들의 발걸음 속에서 재생된 커뮤니티로 머물고 싶은 공간으로 남았으면 좋겠습니다.