문래의 흐름을 다시 걷다.
문래동 예술촌 리노베이션
김윤권 KIM YUN KWON
mgtop8424@naver.com
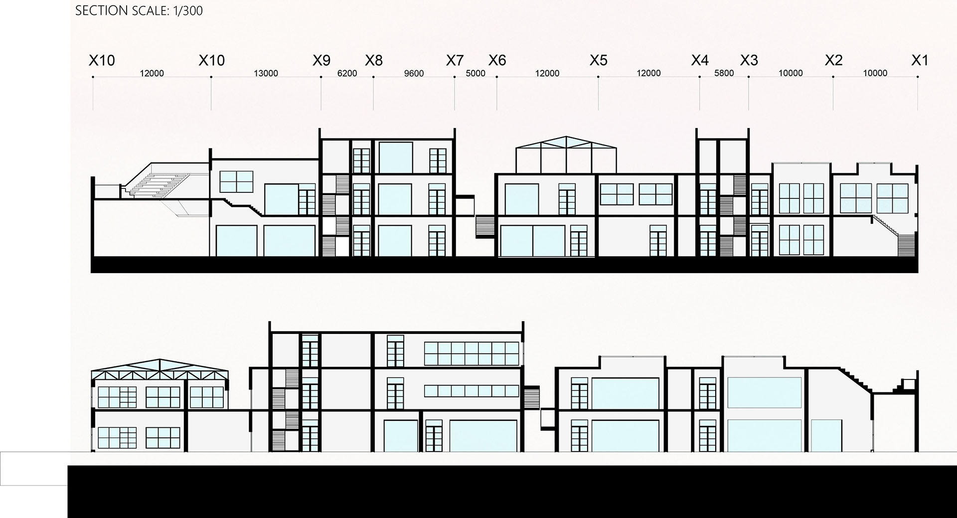
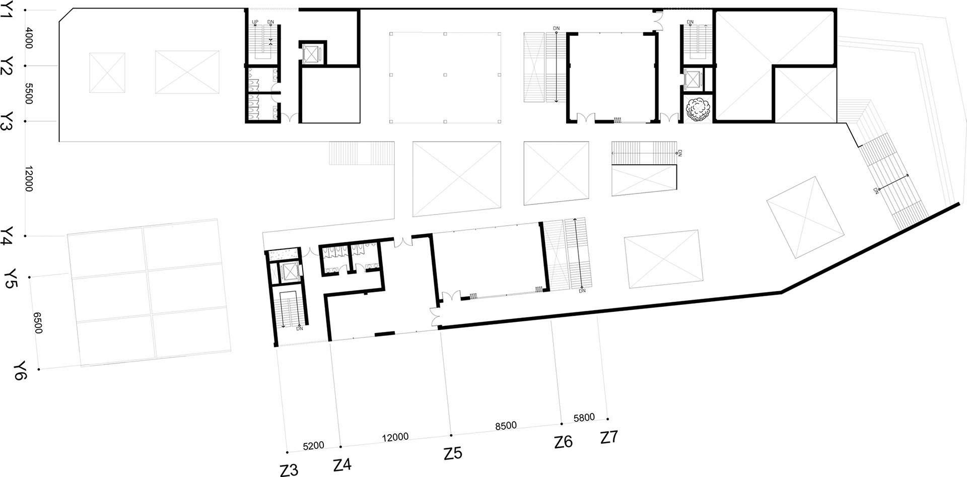
문래동 창작촌의 단절과 쇠퇴를 열린 공간과 새로운 동선으로 회복
문래동 창작촌은 과거 철공소 산업의 흔적과 예술가들의 작업실이 공존하며 독트한 정체성을 만들어낸 장소였다. 그러나 시간이 흐르며 골목은 닫히며 슬럼화가 되며 지역만의 거친 감각과 예술적 활력은 점점 희미햐졌다. 저는 이러한 문제를 해결하기 위해 공간의 중심을 막던 건물들을 제거하고 복도와 코어를 재구성하여 흐름을 다시 회복 시키고자 했다. 단절되 공간을 연결함으로써 사람과 기억, 그리고 예술 활동이 서로 소통할 수 있는 공간을 제안하며 단절된 공간을 연결함으로써 사람과 기억 그리고 예술 활동이 서로 소통할 수 있는 열린 공간으로써 문래동에 다시 새로운 활력을 불어넣고 싶었다.















