2023 Graduation Portfolio

시와 걷다

윤아다솔

시와 걷다

서촌시문학관

윤아다솔

서촌 이야기
과거 서촌은 조선 시대 왕족과 사대부, 중인들의 거주지였으며 조선 후기 중인 중심의 위항문학의 본거지이자 일제 강점기 이후 문인과 예술인의 본거지였습니다. 역관이 상당수 기거하여 근대 조선의 문명교류 현장이었고, 중인 중에서는 특히 화가가 가장 많았습니다. 오랜 역사의 정주민의 생활 모습을 간직한 작고 소박한 한옥과 조선 시대 전통적인 풍수사상의 맥을 유지한 좁고 긴 곡선의 골목길인 고샅길이 옛 도시 조직의 모세혈관을 보여줍니다.
2014년 이래로 서촌은 동네 특유의 분위기로 알려지며 뒤늦게 관광지로 부각되어 많은 방문객들이 모여들기 시작하였습니다. 역사 문화 탐방, 먹거리 투어, 미술관, 갤러리 등 예술의 거리가 형성되었는데 과거 문학과 예술의 교류현장답게 지금도 곳곳에 특색 있는 독립서점들이 자리하고 있어 이곳에 서촌의 문학적 특색을 살린 서촌시문학관을 계획하였습니다.
서촌 읽기
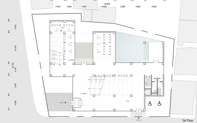
서울특별시 종로구 통의동 70, 70-1에 위치한 대상지는 동쪽 경복궁, 서쪽 인왕산, 북쪽 북악산으로 둘러싸여 있으며 지대가 낮고 평평합니다. 문학과 예술의 거리답게 미술관과 갤러리, 서점이 모여 있습니다. 또한 백송 터, 창의궁 터, 제헌회관 등 역사적으로도 의미가 있는 지역이며, 작고 소박한 한옥들이 너비 2~3m의 좁은 골목길을 따라 자리 잡고 있어 아기자기한 느낌을 줍니다.
서촌 쌓기
움직이는 공간과 머무르는 공간으로 구성되어 있으며 움직이는 공간 사이에 머무르는 공간을 배치하여 공간의 분위기를 전환시킵니다.
서촌 둘러보기
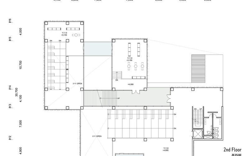
1, 2층에서 넓게 열린 공간과 대형 계단으로 사람들을 끌어들입니다.
머무르는 길을 따라 걸으면 나타나는 수공간은 시와 자연, 조용함, 마루, 쉼의 이미지를 표현해 시적 영감을 주는 곳으로 대지 가장 안쪽 깊숙한 곳에 자리합니다.
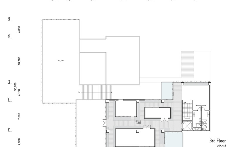
마지막으로 3층은 가장 조용한 공간인 명상실로 각 실들이 긴 통로를 따라 연결됩니다. 벽으로 막힌 공간과 내외부의 루버로 빛을 조절하여 시적 분위기를 제공합니다. 전체적으로 창으로 열린 개방적인 매스 안에서 고요한 사색공간을 제공해 줍니다.

시는 떠오르는 느낌이나 관점을 운율이 있는 언어로 압축하여 표현한 글로 사진처럼 포착되는 찰나의 문학이라고 생각합니다. 제가 계획한 서촌시문학관은 과거 문인들이 많이 살던 서촌의 특색을 살려 누구나 시에 쉽게 접근하고 쓰고, 서로 나누는 장소입니다. 서촌의 골목길과 그 사이의 풍경을 끌어들이고 빛과 그림자의 상호 작용을 통한 내외부 공간 사이의 시각적 효과와 시가 주는 조용하고 느긋한 분위기를 공간에 주고자 합니다.

Work Details

답글 남기기

이메일 주소는 공개되지 않습니다. 필수 필드는 *로 표시됩니다