2023 Graduation Portfolio

중랑구 특수학교 : 맞이학교

홍순현

중랑구 특수학교 : 맞이학교

홍순현

장애학생들의 교육에 있어서 적절한 교육만큼이나 사회와의 적용 능력도 중요하다. 현재 특수학교나 특수학급에서 적절한 교육과 환경은 제공되지만, 장애학생들 끼리만 생활하고 장애우들만 다니기 때문에 학교 내에서 사회로 나아갈 준비가 어려우며 특수학교를 기피시설로 인식하는 주변 시선 때문에 지역사회로부터 격리되어 왔다.
장애학생의 교육에 있어서 적절한 교육만큼이나 사회 구성원으로써의 적응 노력도 중요하기 때문에 학생들과 교사들만 이용하던 기존의 특수학교에 새로운 역할을 부여한다.
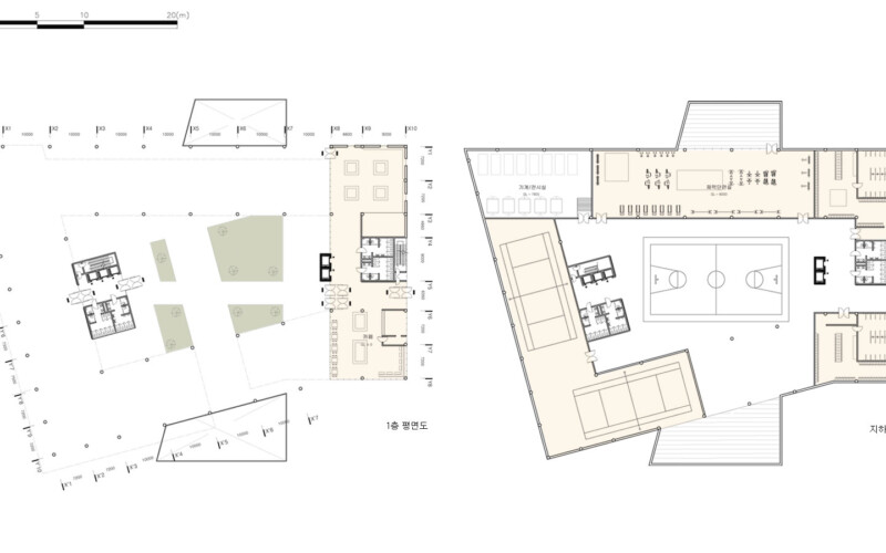
중랑구는 현재 특수학교가 하나도 설립되지 않은 자치구이다. 다른 인근 지역의 특수학교들은 정원이 넘치는 상태이고 이 곳에서 특수학교를 가기 위해선 서울 인군으로 한두 시간씩 등교를 해야 하는 상황이다. 사이트 바로 앞으로 목동천이 흐르고 주위로 산책로가 형성되어있고, 천 건너서 8차선 신내로가 지나고 뒤로는 북부간선도로가 지나고 있다. 북쪽에 위치한 북부간선도로를 등지고 목동천을 바라보며 앉히도록 배치해 산책로를 이용하는 사람들을 끌어들일 수 있도록 배치했다.

Work Details

답글 남기기

이메일 주소는 공개되지 않습니다. 필수 필드는 *로 표시됩니다