Emotional Recharge
천안 시립 노인복지센터, 요양원
배지호
제 프로젝트의 사이트는 천안시 동남구 문화동입니다. 이 지역은 과거 천안의 중심지 였던 곳으로 현재는 각종 시설들의 이전과 원도심의 변경 등으로 인하여 쇠퇴하여 있는 상황입니다.
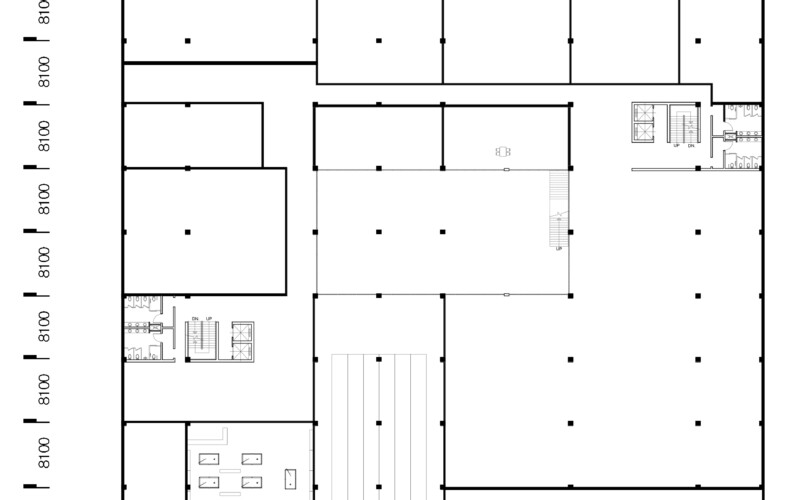
제 사이트는 4미터의 단차가 있고, 주변이 빽빽한 건물로둘러쌓여있으며 전체적으로 좁은 도로들 사이에 위치해 있는 전형적인 구도심에 위치하여 있습니다.
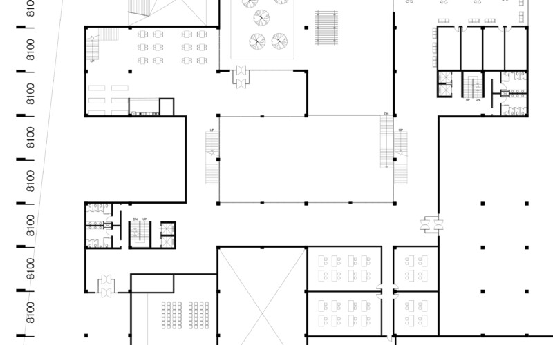
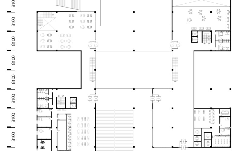
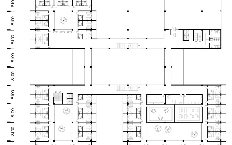
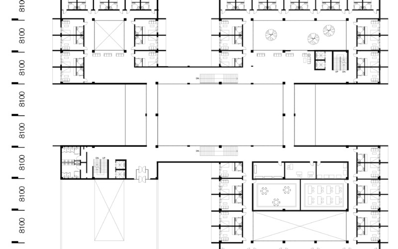
제 프로젝트에는 요양원이 포함된 노인 복지시설, 운동시설, 각종 식당 시설 등이 계획되어 있습니다.
제 프로젝트에는 세 가지 중요한 부분들이 계획되어 있습니다.
첫 번째로, 대지의 고저차를 자연스럽게 연결하는것입니다. 제 사이트의 북쪽과 남쪽에는 약 4미터의 고저차이가 존재하고, 이 때문에 기존 사이트의 내부에서는 경사와 옹벽에 의해 차단이 되어있는 상태였습니다.
그래서 저는 건물 남측면에 2층 진입과 북측면의 1층 진입을 서로 연결하는 방법을 통해 서로 이어질 수 있게 하였습니다.
두 번째는 밝은 입면을 통한 거리 활기 부여입니다. 사이트 인근의 건물들은 대부분 노후화되고 오래된 건물들이 대부분이고, 가로변엔 조명시설도 부족하여 이 거리는 밤이 되면 어둡고 치안이 좋지 않은 지역으로 인식되고 있습니다.
이러한 공간에 사람들이 살고 있음을 보여주는 밝은 입면을 통해 활기를 불어넣어주고, 동시에 기존 요양원 건물의 삭막한 이미지도 중화시켜 줄 수 있다고 생각했습니다.
세 번째는 공간간의 위계 설정입니다. 요양원이라는 공간의 특성상 다른 기능의 공간들과 직접적인 연결은 힘들기 때문에 각 부분마다 위치해있는 중정과 내부 마당을 통해서 서로 간접적으로 소통하고, 동시에 직원들의 관리가 용이하게끔 실을 배치하고 공간을 구성하였습니다.


















