2023 Graduation Portfolio

EMPTY AND FULL-우수상

정하늘

EMPTY AND FULL

정하늘

자연과 도시의 맥락을 단절 시키고 기피시설로 자리하던 유수지라는 공간을, 유수지의 자연과 도시의 연결지점 이라는 ‘지리적인 특징’과 빗물을 모으고 정화하는 ‘기능적인 특징’ 계절에 따라 모습이 변화하고, 물을 모으는 ‘하부 공간의 잠재성’을 통하여 유수지로 인해 단절 되었던 도시의 맥락을 잇고, 단절과 유후지로 자리하던 유수지라는 공간을 더욱 가까운 곳에서 느끼고 경험하도록 하여 의미있는 공간이 되게 하고자 한다.
사이트인 뚝섬 유수지를 중심으로 동쪽에는 아파트단지가, 서쪽은 서울숲, 남쪽은 서울숲 카페거리, 북쪽은 중랑천이 있지만 유수지로 인하여 도시의 요소들은 단절되어 있다. 사이트인 뚝섬 유수지는 최근 유수지를 활용하고자 이를 복개 시켜 상부는 주차장으로 하부는 유수지로 사용하고 있지만 복개로 인하여 유수지 하부는 더욱 어둡고 상부는 드라이한 공간이 되었다.
복개 된 뚝섬 유수지의 하부 높이는 4.5m이며, 비가 왔을 때의 최대 빗물의 높이는 +1m까지 차고, 빗물의 수위는 빗물펌프장 펌프 시설을 통하여 조절할 수 있어 복개 된 주차장을 +0레벨로 보았을 때 하부를 최대 –3.5m 까지 사용할 수 있다. 이러한 유수지의 가용범위와 잠재성을 고려하여 의미있는 공간이 되게 하고자 한다.
서울시에는 52개의 유수지가 있다. 유수지는 여름철 집중 호우기간에만 사용을 하고 나머지 기간 동안은 도심 속 유휴지로 자리하고 있다. 유수지는 지리적으로 자연과 도시의 연결지점에 있으며, 기능적으로 빗물을 모았다 정화하여 한강으로 배출시킨다는 목적이 있다. 하지만 최근 유수지의 활용 현황을 보면 유수지의 잠재성을 고려하지 못한 채 복개 후 단순한 판 형식으로 사용되고 있다.
유수지는 지리적으로 자연과 도시의 연결 지점에 있으며, 기능적으로 빗물을 모았다 정화하여 한강으로 배출시킨다는 목적이 있으며, 하부적으로 계절에 따라 모습이 변화한다는 잠재적 성격이 있다.
-작물재배-지리적, 기능적 잠재성의 극대화-
프로그램으로는 빗물을 활용하고 유수지의 잠재성을 극대화시킬 수 있는 작물재배를 가져왔다. 작물이 본래 가지고 있는 정화, 저장, 가변적인 성격이 유수지의 잠재성과 어우러진다. 작물재배를 통해 빗물을 모으고 정화하는 기능적 잠재성을 극대화 시킬 수 있으며, 계절에 따라 변화하는 가변성을 더하고, 녹지를 통한 도시적 맥락의 연결을 통해 지리적 잠재성을 극대화 시킬 수 있다.
-하부공간의 잠재성-
공간의 잠재성은 유수지의 하부를 통해 극대화 하고자 한다. 유수지 가용 범위에 따라 +0(복개 된 유수지), -3500(비가 왔을 때 최대 사용 레벨), -4500(*유수지 하부)레벨을 나누었고, 보이드 공간을 통해 기존 복개 된 판을 들어내어 유수지의 변화를 볼 수 있도록 하였고, 이를 동선으로 연결하여 적극적인 유수지에서의 경험을 유도하였다.
-비가 와왔을 때/오지 않았을 때-
비가 왔을 때 -3500레벨에서 하부부터 물이 차오르는 것과 유수지를 더욱 가까이 느낄 수 있으며, 0레벨에 보이드 공간을 통해 빗물이 떨어지는 것을 보고 느낄 수 있다. 비가 오지 않았을 때 -3500 레벨에서 복개된 판과 보이드 된 공간을 통해 밝음과 어두움을 느낄 수 있다.
1.상부 비가 올 때
>하부에 빗물이 차오르는 것을 볼 수 있다.
>투명한 입면을 통해 비가 내리는 것을 느낄 수 있다
2.상부 비가 오지 않을 때
>복개된 판 위에 형성된 외부 공간에서 다양한 활동이 일어난다.
3.하부 비가 올 때
>보이드 공간을 통해 떨어지는 비를 느낄 수 있다.
>4500 레벨에 차오르는 빗물을 경험할 수 있다.
4.하부 비가 오지 않을 때
>복개 된 판으로 인한 어두운 공간을 경험한다.
>보이드 공간을 통해 들어오는 빛을 경험할 수 있다.
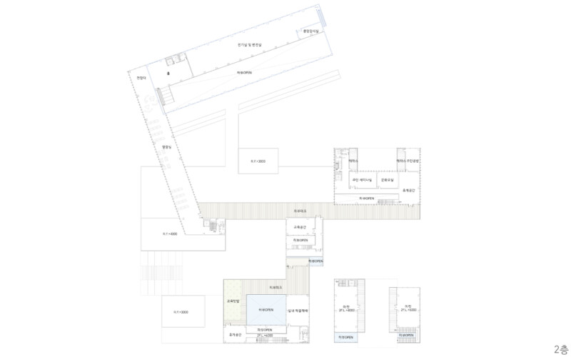
유수지와 빗물펌프장의 연결
주거시설 진입로(주출입구)에서 본 뷰
메인 보이드와 하부로 이어지는 동선, 보이드를 통해 느낄 수 있는 하부의 변화
-3500 하부 공간
-3500 하부 전시공간, 하부에서 물이 차오르는 것과 상부 보이드를 통해 비가 왔을 때는 빗물이 떨어지고, 비가 오지 않았을 때는 빛이 스며드는 것을 느낄 수 있다.
유수지 교육시설의 계단을 통해 내려가면 경험할 수 있는 유수지
세미나실에서 경험하는 유수지, 세미나실은 1층에서 진입하여 –3500레벨로 내려가도록 설계하였다. 상부에서 세미나실로 인하여 가려질 빗물펌프장 뷰를 고려하였고, 세미나를 들으며 유수지의 하부의 변화를 느끼게 하고자 하였다.
작물재배 교육시설
라이브러리
각 매스들을 잇는 상부 브릿지
상업시설
카페

Work Details

답글 남기기

이메일 주소는 공개되지 않습니다. 필수 필드는 *로 표시됩니다