Hill-like Station
Hill-like Station – DMC역 리노베이션 프로젝트
김효태
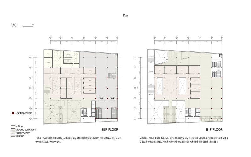
공원과 연결로의 중요성은 시간이 갈수록 커지고 있다. 이는 사람들을 업무지, 문화공간, 주거지 등으로 자유롭게 데려다 주며, 사람들이 열린 공간에 모일 수 있게 한다. DMC역 근처에는 대규모 체육시설, 문화비축기지, 첨단산업단지, 공원들이 있다. DMC역이 다양한 이용자의 일상생활과 관련된 공간으로 채워진다면 사람들을 끌어당기는 매력적인 공간이 될 수 있음과 동시에 연결로에서 펌프역할을 할 수 있을 것이다.
본 프로젝트에서는 공공의 영역을 강화하여 도시적 역동성을 부여할 수 있도록 도시기반시설을 도시기획수단으로 전환하고자 하였다. 기반시설의 넓은 비워진 공간을 활용하고 프로그램 개입의 여지가 존재하는 곳에 프로그램적 강화를 통해 두 공간 간의 상호작용과 해프닝을 유도한다.

























Peter Eisenman
작품에 많은 노력과 고민이 녹아들어 있어 보입니다.
5년동안의 여정을 좋은 작품과 퀄리티로 마무리 할 수 있어서 자랑스럽고 멋집니다.
앞으로도 좋은 작품 기대하고 있겠습니다.