NON-EVERYDAY IN EVERYDAY
“새로운 광장은 지상과 지하, 도시와 시민을 입체적으로 연결하는 중심 공간으로, 단절된 도시조직을 회복하고 서울광장을 다시 일상 속으로 되돌립니다.”
임채원 LIM CHAE WON
sunmy1912@naver.com
일상의 회복을 위한 서울광장의 재구성
서울광장은 도시민들의 생활 중심 공간으로서, 정치·문화·사교의 장으로 오랜 시간 물리적 공간으로서의 중요한 역할을 해왔지만, 오늘날에는 우리의 일상과 깊이 연결되지 못한 채 주로 이벤트성 공간으로만 활용이 되며 광장은 서울 중심의 커다란 빈 땅, 기능을 잃어가는 공간으로 남을 가능성이 커지고 있습니다. 이에 따라, 광장을 일상적인 공간으로 다시 활성화하기 위한 건축적 방안을 제안하고자 합니다.
과거의 서울광장은 차량 통행 중심의 방사형 도로 구조로 구성된 교통 중심 광장이었습니다. 이후 2004년 녹색 잔디 광장으로 조성됨으로 도심 속의 녹지 힐링 공간 역할을 하게 되었지만, 여전히 삼면이 도로로 둘러싸여 주변 도시 조직과 단절되어 접근성이 떨어져 보행과 머무르기엔 불리한 환경을 가지고 있습니다. 결국 현재 서울 광장은 단순히 커다란 ‘평면적 공간’으로 존재하며, 상하부 및 주변 맥락과 유기적으로 연결되지 못한 채 서울시청 앞의 ‘큰 빈 땅’로 남아 있는 것이 현실입니다.
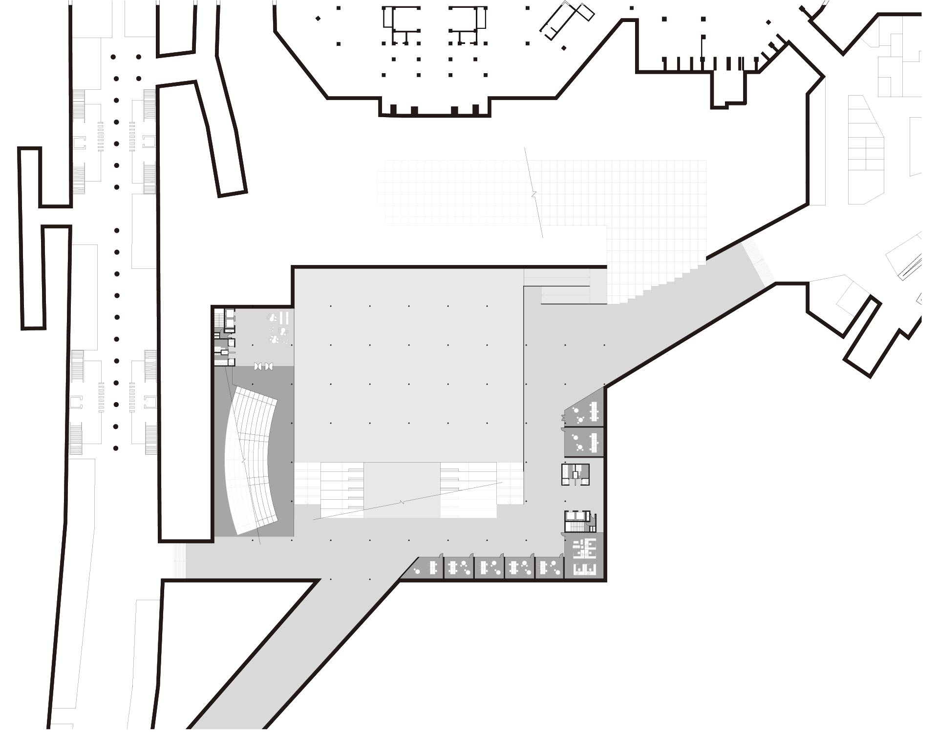
이러한 한계를 극복하기 위해, 광장의 평면적 구조를 수평적, 수직적으로 확장하여 도시와의 연결성을 회복하고자 합니다. 지상 광장의 머무르는 공간과 지하의 통행이 용도인 기존에 있는 지하 네트워크를 이용하여 같이 살림과 동시에 사람들의 보행 접근성을 지하로써 좋게 하는 방향으로 지하화했습니다. 두 영역은 단절되지 않고 연계되어야 하며, 위아래가 소통되는 하나의 복합 공간으로 작동해야 합니다.
이를 위해, 광장을 일정 부분 파내거나 들어 올려 앞·뒤 광장으로 이분화하여 이벤트 공간은 여전히 유지하되, 그 하부에는 일상적인 활동이 가능한 공간과 이동을 할 수 있는 통로를 마련해 누구나 자유롭게 이용할 수 있는 열린 공간으로 재구성하는 것입니다. 하나의 레벨로 존재하기보다는 하부공간을 다양한 레벨로 조성하여 단순히 머무르는 공간뿐 아닌 지상에서 지하로 흘러내려는 듯한 느낌을 주도록 하였습니다. 또한, 건물 외부와 내부의 다양한 레벨 모든 곳에 사람들이 머무를 수 있는 광장을 조성하여, 물리적·심리적 경계를 허물고자 합니다.
광장을 위로 들어 올리고 아래로 내려 공간을 분화함으로써, 건물 속의 광장과 도시 속의 광장이 함께 공존할 수 있는 구조를 제안합니다. 하부 공간은 단순한 건물이 아닌 하나의 작은 광장으로 인식될 수 있도록 계획하였습니다.
도로로 둘러싸인 교통섬에 자리하고 있어 보행자의 접근이 어려웠던 공간으로 광장의 기능도 점점 옅어지는 광장의 보행 접근성을 개선하기 위해 광장의 지하화 제안합니다. 기존의 이벤트성 공간으로만 활용되던 광장이 기존의 광장 하부의 시티스타몰, 전철역과 연결되고, 더 나아가 외딴섬이었던 서울광장이 사대문 내 지하 네트워크의 중심점으로 사람에 의해 ‘모이고, 흩어지고, 다시 모이는’ 일상적인 공간으로 전환되도록 하는 것이 이 제안의 핵심입니다.









