PROMENADELY
PROMENADE + 나들이, Mixed-use apartment building
박나단
인생행로라는 말이 있듯이, 산다는 것은 길을 따라 걷는 행위다. 걷기는 오늘날 우리 사회의 온갖 근심걱정과 성급함을 잠시 멈추게 한다. 비록 간단한 동네 산책이라 하더라도, 걷다보면 평소 무심히 지나쳤던 주위의 나무나 돌 혹은 풀꽃 같은 사물이 눈에 잘 보인다. 마음에 여유가 생기기 때문에 오감이 절로 열려, 자연이 전하는 메시지를 받아들이게 한다.
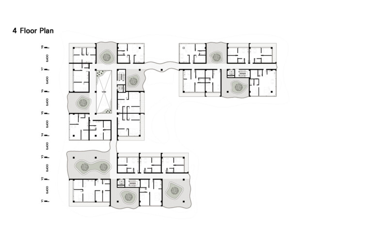
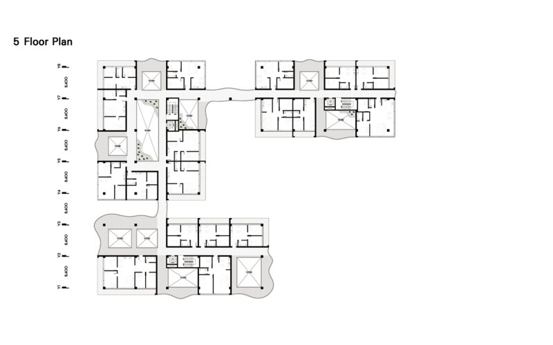
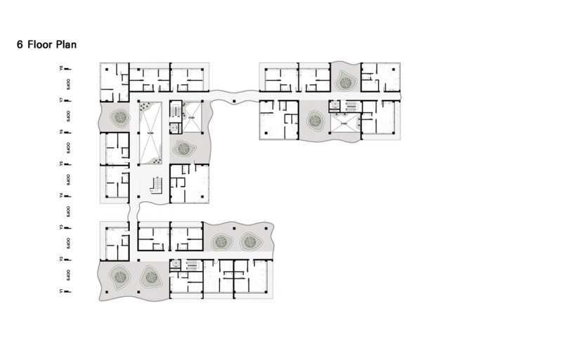
경기도 하남시 덕풍 3동에 위치한 계획대지는 덕풍 3동의 중심에 위치해 있으며, 각각 분포 되어있는 문화, 상업, 교육시설들을 통과 하는 산책로와 접해있다. 이 산책로를 활용한 건축물 계획함으로써,다양한 문화 시설들의 단절을 연결해주도록 했다.





















최윤슬
올해 본 최고의 작품 같습니다 인상깊어요