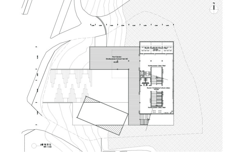
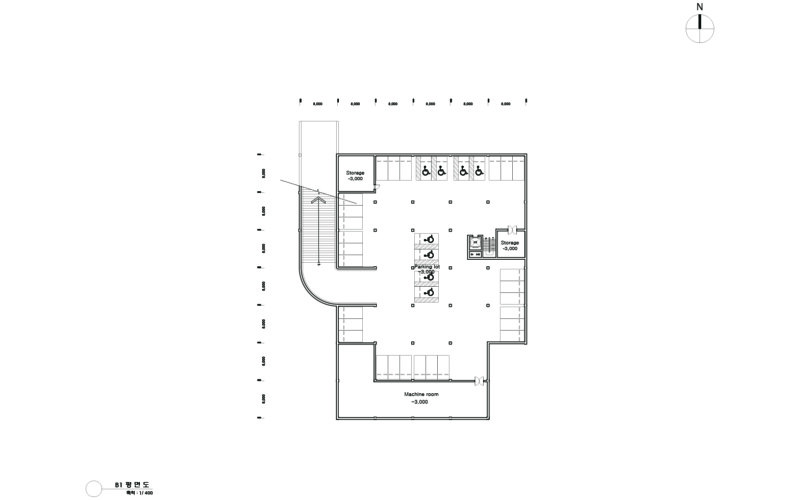
R , Exhibition Suwon Hwaseong Complex Center
R , Exhibition 지나치던 일상을 새로이 전시
이진혁(’10)
[R , Exhibition = RE + Exhibition]
수원 화성이 가진 가치는 누구나 잘 알고 있지만 일상생활에서 경험하기는 쉽지않다.
빠른 일상생활과는 반대로 천천히 거닐며 자신의 주변을 돌아볼 수 있는 넓은 공간을 구성하여 바쁜 일상생활에 지나쳤던 수원 화성과 우리 마을의 모습을 바라보고 재전시하는 쉼표의 공간을 생각했다.
졸업가즈아
멋있다 이진혁~~ 졸업 가즈아ㅏㅏㅏㅏㅏㅏ!!