School from Biophilia
김현우
과거의 교육은 사회라는 시장에 일정 수준이상의 제품을 내놓는 Reproduction에 집중되어 있다.
이에 따른 학교의 공간 또한 일률적인 형태에 갇혀 있다.
미래의 교육은 다변화한 사회에서 각각의 작은 사회를 이끌어감과 동시에 서로간의 공감 및 협동이 중요하다.
따라서 미래의 교육은 Reproduction 보다는 Renewal에 집중하여 교육의 주체 하나하나가 idea의 주체가 된다.
이에 따른 학교의 공간 또한 새로운 교육의 패러다임에 맞추어 다변화가 가능하고 능동적인 공간적 연결이 필요하다.
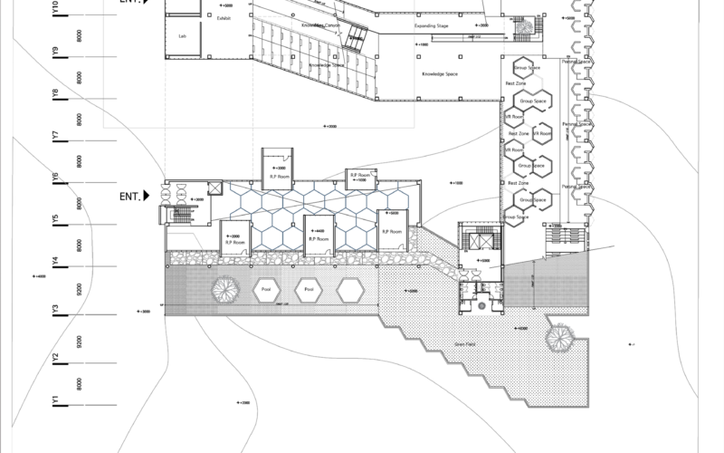
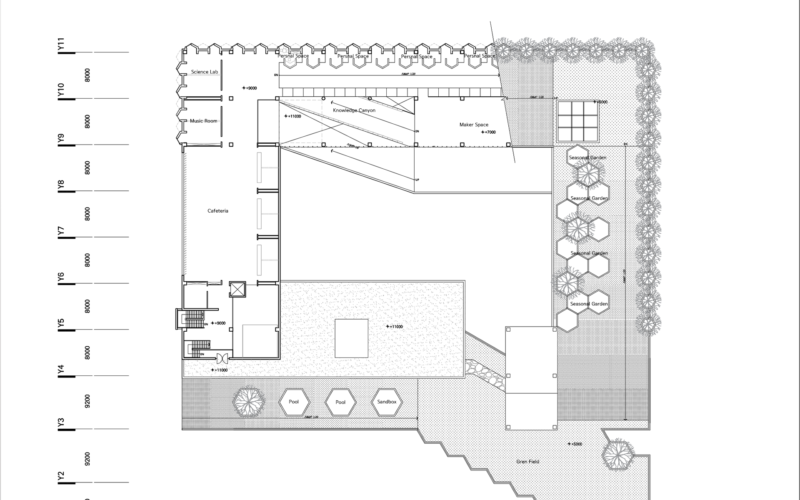
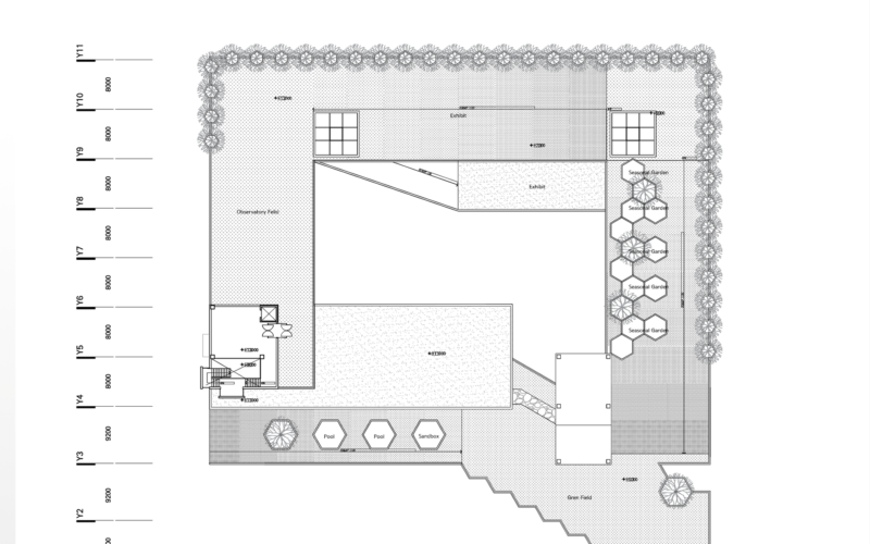
따라서 기존의 학교의 일률적인 형태 및 프로그램을 벗어나 개개인이 주체가 되어 다양한 규모의 그룹을 형성하여 프로젝트를 진행하고 진행한 프로젝트를 서로 공유하며 학습하는 형태가 주가 된다.
사회가 발전할 수록 우리 인류 또한 자연의 일부라는 것을 망각하고 자연을 훼손하며 그 자리에 인공물을 채워 넣어왔다.
인공물로만 둘러 쌓인 환경에서 이제는 그 자리에 자연을 채워넣어가며 인류 또한 자연의 일부라는 것을 깨닫고 학습한다.
이 프로젝트는 근접한 산세의 흐름을 이어 내려옴과 동시에 주변 인공물과의 조화를 생각하며 매스를 배치하였다.
인공물의 대표적인 형태인 사각형의 형태에 자연으로부터 유래한 형태를 결합 및 관통시키면서 이로인해 비워진 공간을 자연으로 채웠다.



















Mariffer Delgado
Amazing project with a holistic approach blending sustainability and aesthetic. The whole concept is refreshing and promising. It’s great to see new talent with innovative ideas being able to bring them to life. I appreciate that the user is considered to the the max. Projects like this get me excited about the future. Great job Architect Kim!