2022 Graduation Portfolio

THE PASSAGE OF TIME

손동준

THE PASSAGE OF TIME

손동준

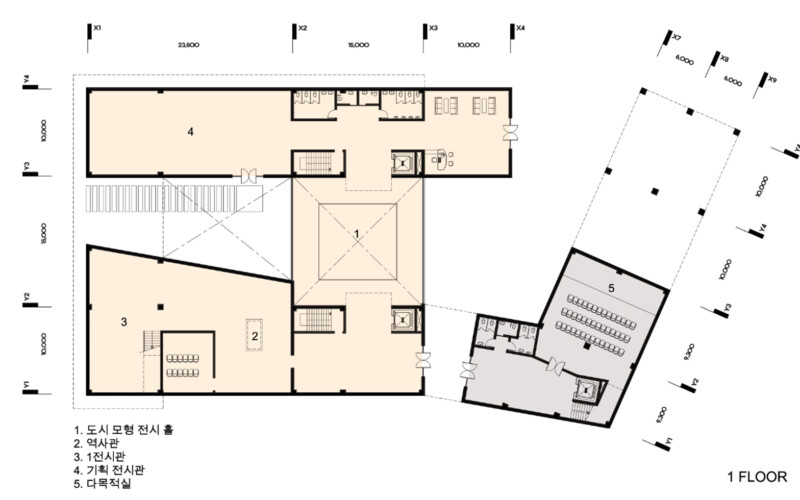
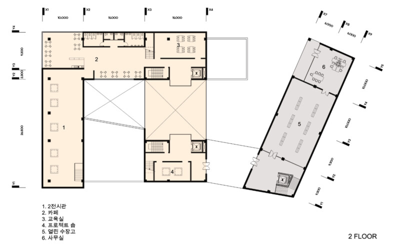
수원시 세계문화유산인 화성행궁 옆에 위치해 과거의 행궁과 현재의 도시가 한 곳에서
만나 수원시의 도시역사를 나태내는 공간을 만들고자 한다. 시간이 지남에 따라 변화해
가는 수원시의 모습을 담을 수 있도록 계획하였고 옛 성곽이 과거에서부터 현재까지
유지되고 그 용도가 시간에 따라 달라짐을 전시관의 공간감을 변화시켜 나타내었다.
과거와 현재가 만나는 이곳에서 수원시의 역사와 미래를 위한 도약을 의미하고자 한다.

Work Details

답글 남기기

이메일 주소는 공개되지 않습니다. 필수 필드는 *로 표시됩니다