Urban Nets : Crafting space
Shaping urban homes to reflect individual lives
심재서 SIM – JAE SEO
tlawotj@gmail.com
개개인의 다양성과 삶의 방식을 개인의 공간으로 만들어 나갈 수 있는 도시 속 주거 공간
도시 주거는 단순히 머무는 장소가 아니라, 개인의 정체성과 라이프스타일을 담아낼 수 있는 유연한 공간으로 변화할 필요가 있다. 기존의 획일화된 주거 모델은 이러한 다양성을 충분히 수용하지 못하며, 특히 1인 가구의 급격한 증가와 함께 주거 방식의 새로운 대안이 요구되고 있다.
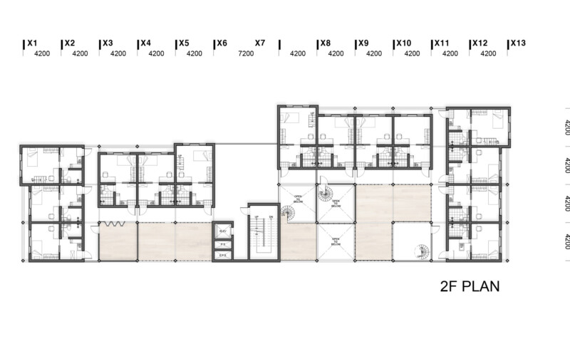
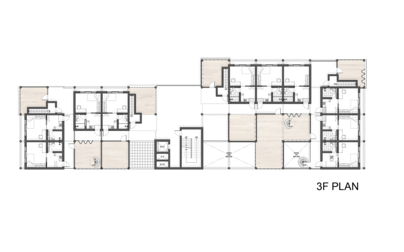
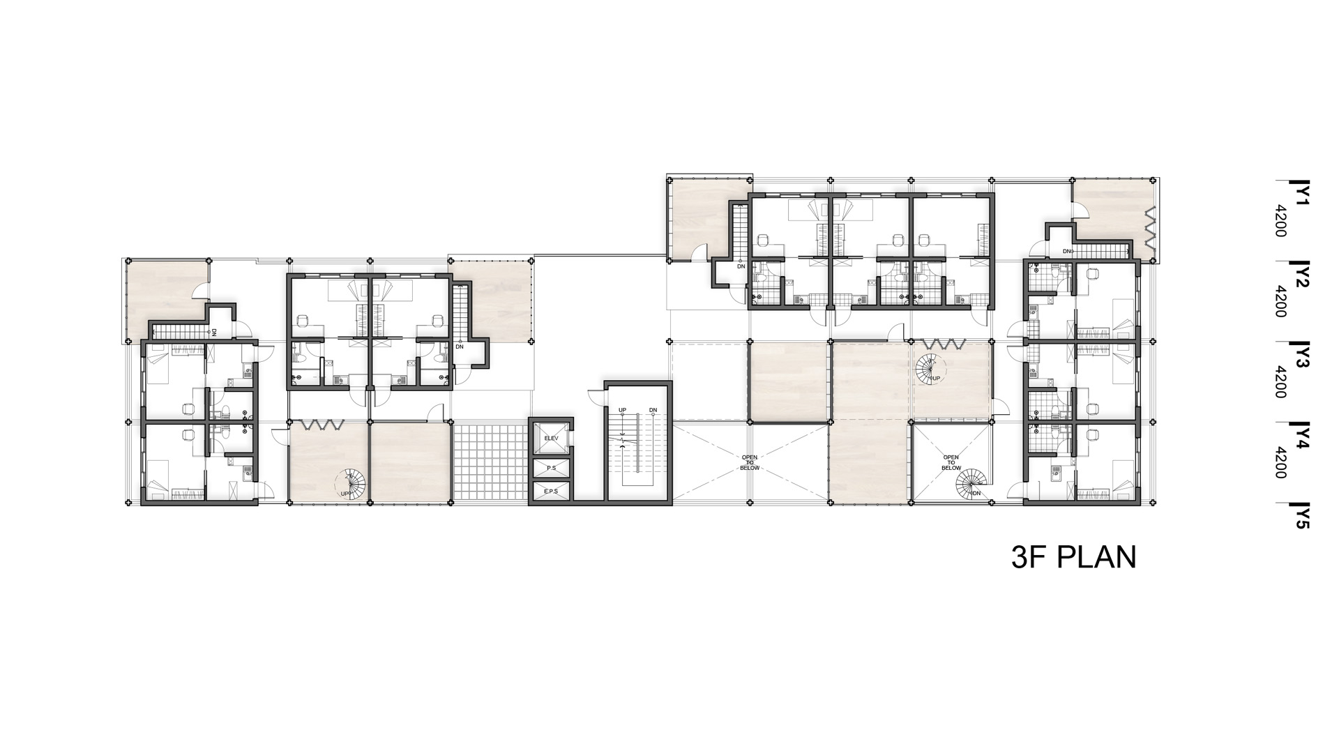
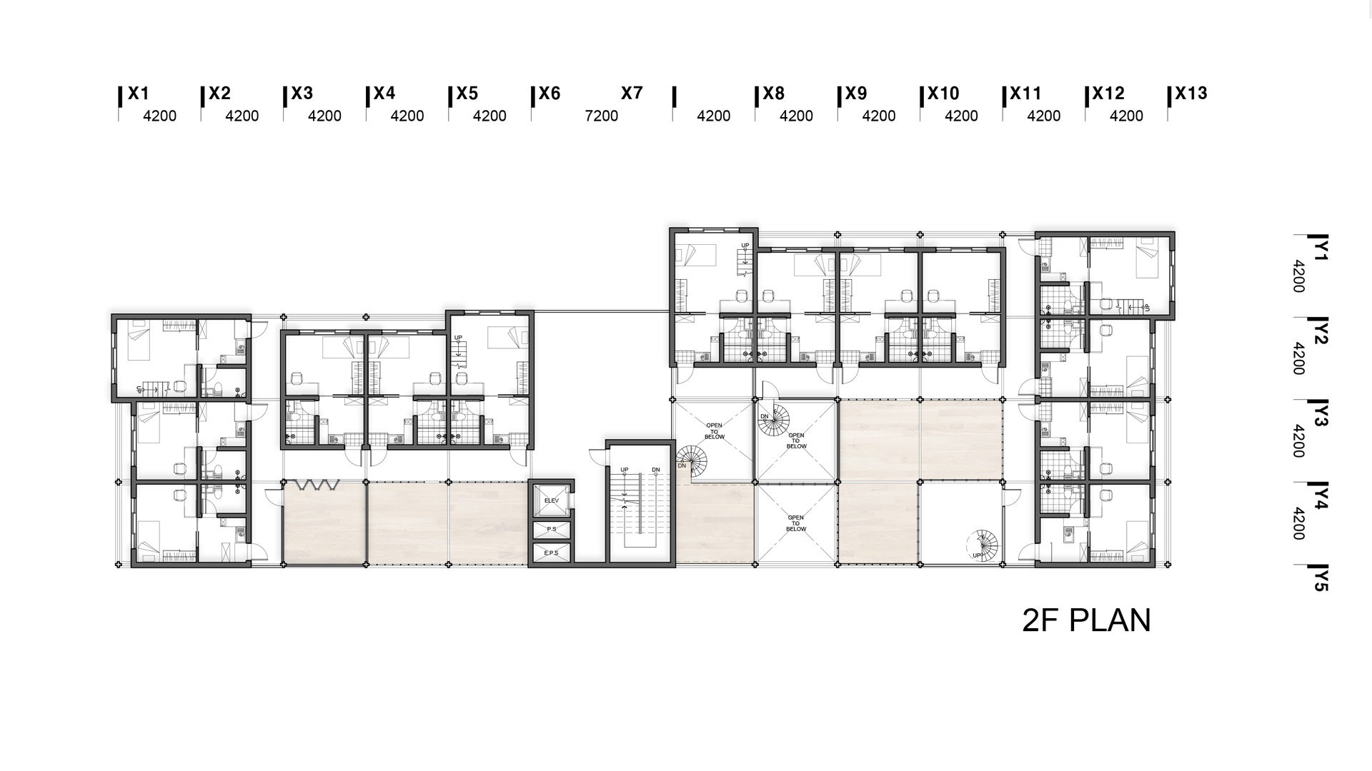
본 프로젝트는 ‘알파 스페이스(Alpha Space)’라는 개념을 중심으로, 변화하는 도시 주거의 가능성을 탐구한다. 알파 스페이스란 최소한의 기본 거주 공간에 더해, 거주자가 자유롭게 활용할 수 있는 가변적이고 확장 가능한 여분의 공간을 의미한다. 이는 단순히 여유 공간 이상의 개념으로, 개인의 생활 방식과 필요에 따라 성격이 달라지고, 때로는 주변과의 공유를 통해 또 다른 가치를 만들어낼 수 있다.
이러한 유닛 구조는 전통적으로 2인, 3인 혹은 그 이상의 가구 구성원 수에 따라 규정되던 주거 단위를 대체한다. 대신, 각 세대는 기본적인 생활을 충족하는 최소 주거 공간과 함께, 변형 가능한 알파 스페이스를 조합하여 새로운 주거 형태를 형성한다. 알파 스페이스는 필요에 따라 독립적인 개인 공간으로도, 혹은 공동의 활동을 위한 공유 공간으로도 활용될 수 있다. 즉, 사용자의 선택에 따라 주거 단위가 조합되고 재편성되는 유연성을 지닌 주거형태를 이프로젝트를 통해 제안한다.











